

Total Heated Area
2,760 sq. ft.
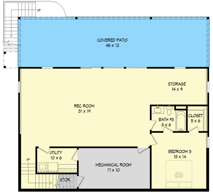
Lower Level
1,380 sq. ft.
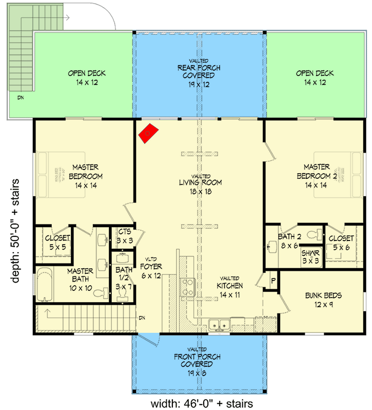
1st Floor
1,380 sq. ft.
Porch, Combined
1,252 sq. ft.
Bedrooms
3 or 4
Full bathrooms
3
Half bathrooms
1
Standard Foundations
Walkout
Exterior Walls
2x4
Optional Type(s)
2x6
Width
46' 0"
Depth
50' 0"
Max Ridge Height
17' 0"
Lower Level
9'
First Floor
9'
Primary Pitch
7 on 12
Framing Type
Stick
Total Heated Area
2,760 sq. ft.
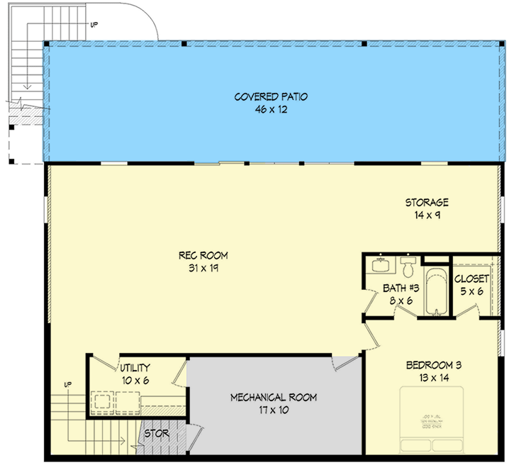
Lower Level
1,380 sq. ft.
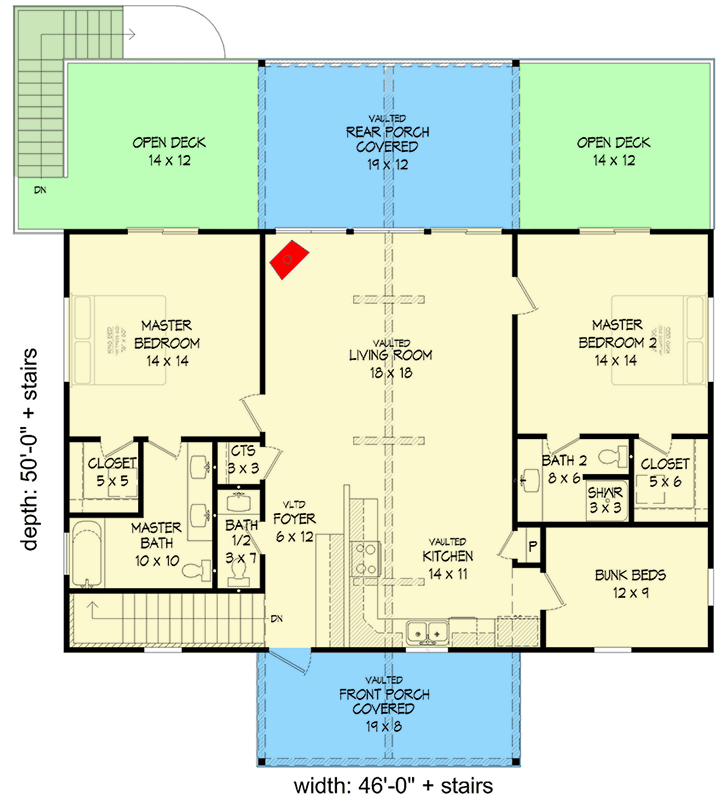
1st Floor
1,380 sq. ft.
Porch, Combined
1,252 sq. ft.
Bedrooms
3 or 4
Full bathrooms
3
Half bathrooms
1
Standard Foundations
Walkout
Exterior Walls
2x4
Optional Type(s)
2x6
Width
46' 0"
Depth
50' 0"
Max Ridge Height
17' 0"
Lower Level
9'
First Floor
9'
Primary Pitch
7 on 12
Framing Type
Stick