

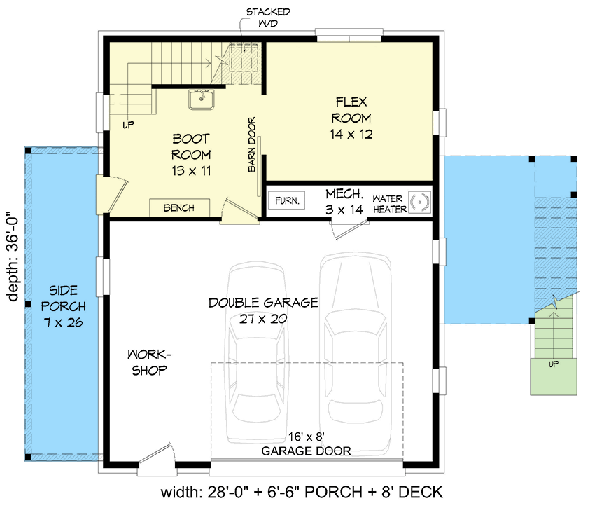
Total Heated Area
1,202 sq. ft.
1st Floor
458 sq. ft.
2nd Floor
744 sq. ft.
Porch, Combined
169 sq. ft.
Deck
120 sq. ft.
Bedrooms
1
Full bathrooms
1
Standard Foundations
Slab
Exterior Walls
2x6
Width
42' 6"
Depth
36' 0"
Max Ridge Height
24' 10"
Type
Attached
Area
604 sq. ft.
Count
2 Cars
Entry Location
Front
Primary Pitch
12 on 12
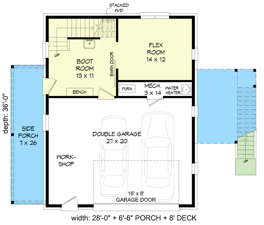
Total Heated Area
1,202 sq. ft.
1st Floor
458 sq. ft.
2nd Floor
744 sq. ft.
Porch, Combined
169 sq. ft.
Deck
120 sq. ft.
Bedrooms
1
Full bathrooms
1
Standard Foundations
Slab
Exterior Walls
2x6
Width
42' 6"
Depth
36' 0"
Max Ridge Height
24' 10"
Type
Attached
Area
604 sq. ft.
Count
2 Cars
Entry Location
Front
Primary Pitch
12 on 12