

Total Heated Area
2,383 sq. ft.
1st Floor
2,383 sq. ft.
Basement Unfinished
1,220 sq. ft.
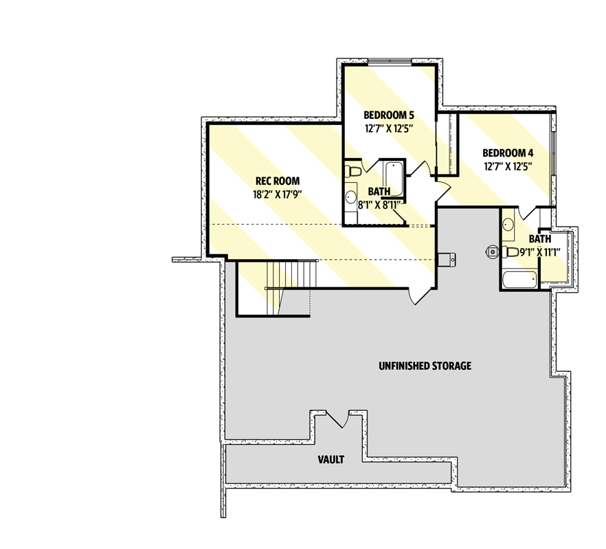
Optional Lower Level
1,163 sq. ft.
Porch, Combined
1,224 sq. ft.
Bedrooms
2, 3, 4, or 5
Full bathrooms
2, 3, or 4
Half bathrooms
1
Standard Foundations
Basement
Exterior Walls
2x6
Width
74' 6"
Depth
65' 6"
Max Ridge Height
24' 8"
Type
Attached
Area
973 sq. ft.
Count
3 Cars
Entry Location
Side
Lower Level
10'
First Floor
10'
Primary Pitch
7 on 12
Secondary Pitch
10 on 12
Framing Type
Truss
Total Heated Area
2,383 sq. ft.
1st Floor
2,383 sq. ft.
Basement Unfinished
1,220 sq. ft.
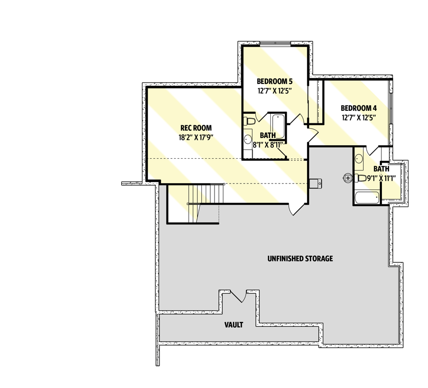
Optional Lower Level
1,163 sq. ft.
Porch, Combined
1,224 sq. ft.
Bedrooms
2, 3, 4, or 5
Full bathrooms
2, 3, or 4
Half bathrooms
1
Standard Foundations
Basement
Exterior Walls
2x6
Width
74' 6"
Depth
65' 6"
Max Ridge Height
24' 8"
Type
Attached
Area
973 sq. ft.
Count
3 Cars
Entry Location
Side
Lower Level
10'
First Floor
10'
Primary Pitch
7 on 12
Secondary Pitch
10 on 12
Framing Type
Truss