
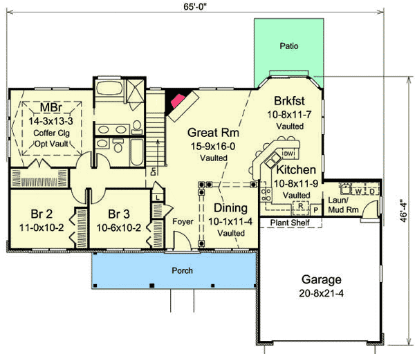
Total Heated Area
1,562 sq. ft.
1st Floor
1,562 sq. ft.
Basement Unfinished
1,434 sq. ft.
Porch, Front
168 sq. ft.
Bedrooms
3
Full bathrooms
2
Standard Foundations
Basement
Exterior Walls
2x4
Width
65' 0"
Depth
46' 4"
Max Ridge Height
22' 2"
Type
Attached
Area
461 sq. ft.
Count
2 Cars
Entry Location
Front
First Floor
9'
Primary Pitch
8 on 12
Secondary Pitch
10 on 12
Framing Type
Truss
Total Heated Area
1,562 sq. ft.
1st Floor
1,562 sq. ft.
Basement Unfinished
1,434 sq. ft.
Porch, Front
168 sq. ft.
Bedrooms
3
Full bathrooms
2
Standard Foundations
Basement
Exterior Walls
2x4
Width
65' 0"
Depth
46' 4"
Max Ridge Height
22' 2"
Type
Attached
Area
461 sq. ft.
Count
2 Cars
Entry Location
Front
First Floor
9'
Primary Pitch
8 on 12
Secondary Pitch
10 on 12
Framing Type
Truss