Exclusive

Total Heated Area
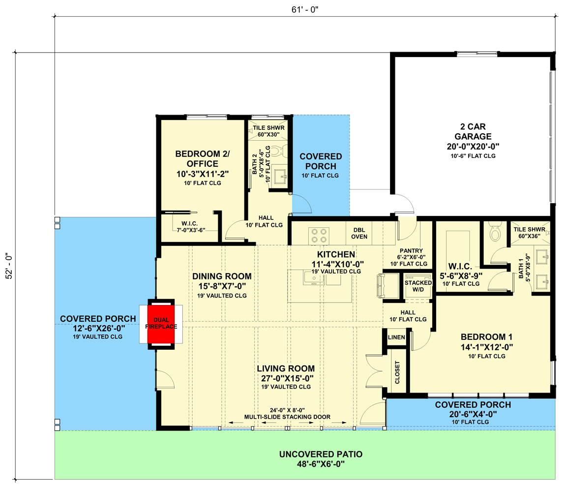
1,370 sq. ft.
1st Floor
1,370 sq. ft.
Covered Patio
491 sq. ft.
Bedrooms
1 or 2
Full bathrooms
2
Standard Foundations
Monolithic Slab, Slab
Exterior Walls
2x6
Width
61' 0"
Depth
52' 0"
Max Ridge Height
26' 0"
Type
Attached
Area
400 sq. ft.
Count
2 Cars
Entry Location
Side
First Floor
10'
Room
Ceiling Type
Height
Living Room
Vaulted
19' 0''
Kitchen
Vaulted
19' 0''
Primary Pitch
10 on 0
Framing Type
Stick And Truss
Total Heated Area
1,370 sq. ft.
1st Floor
1,370 sq. ft.
Covered Patio
491 sq. ft.
Bedrooms
1 or 2
Full bathrooms
2
Standard Foundations
Monolithic Slab, Slab
Exterior Walls
2x6
Width
61' 0"
Depth
52' 0"
Max Ridge Height
26' 0"
Type
Attached
Area
400 sq. ft.
Count
2 Cars
Entry Location
Side
First Floor
10'
Room
Ceiling Type
Height
Living Room
Vaulted
19' 0''
Kitchen
Vaulted
19' 0''
Primary Pitch
10 on 0
Framing Type
Stick And Truss