

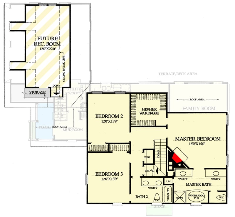
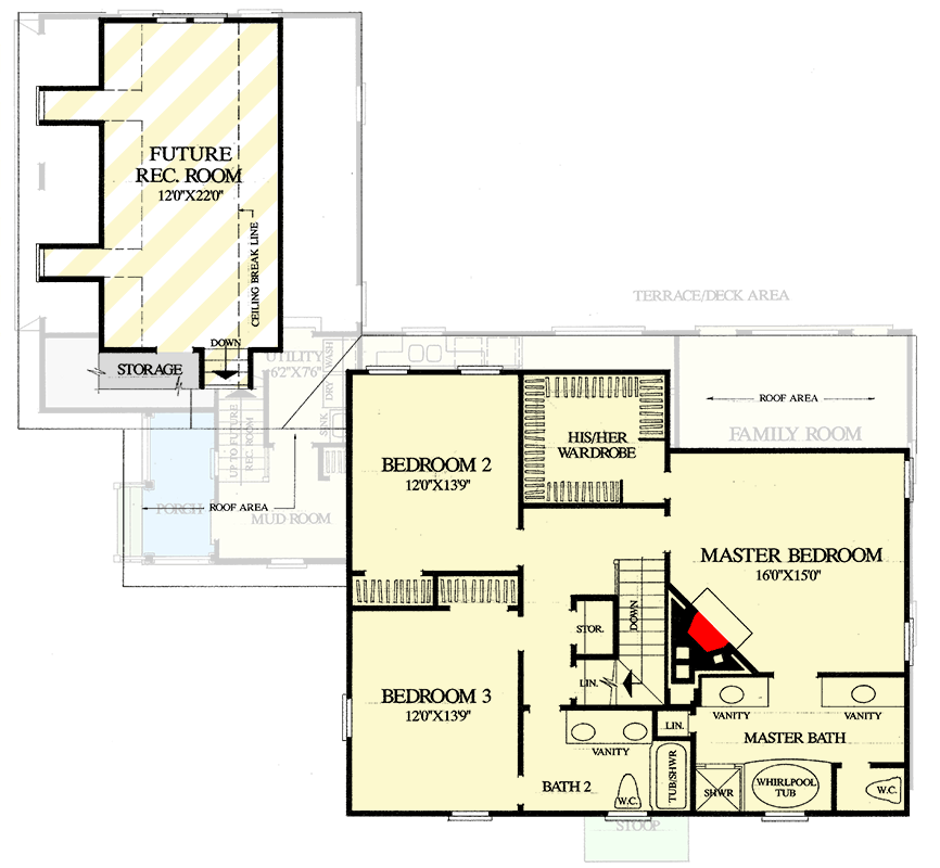
Total Heated Area
2,496 sq. ft.
1st Floor
1,414 sq. ft.
2nd Floor
1,082 sq. ft.
Bonus
308 sq. ft.
Bedrooms
3
Full bathrooms
2
Half bathrooms
1
Standard Foundations
Basement, Crawl
Exterior Walls
2x4
Width
61' 0"
Depth
54' 8"
Max Ridge Height
32' 6"
Type
Attached
Area
484 sq. ft.
Count
2 Cars
Entry Location
Side
First Floor
8'
Framing Type
Stick
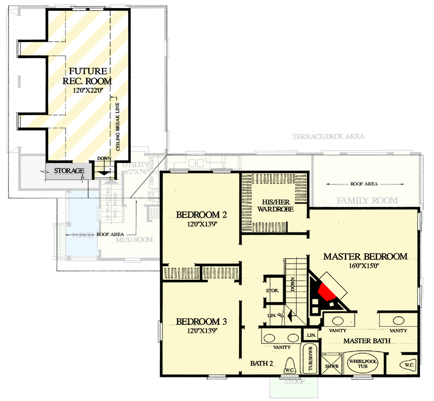
Total Heated Area
2,496 sq. ft.
1st Floor
1,414 sq. ft.
2nd Floor
1,082 sq. ft.
Bonus
308 sq. ft.
Bedrooms
3
Full bathrooms
2
Half bathrooms
1
Standard Foundations
Basement, Crawl
Exterior Walls
2x4
Width
61' 0"
Depth
54' 8"
Max Ridge Height
32' 6"
Type
Attached
Area
484 sq. ft.
Count
2 Cars
Entry Location
Side
First Floor
8'
Framing Type
Stick