

Total Heated Area
3,192 sq. ft.
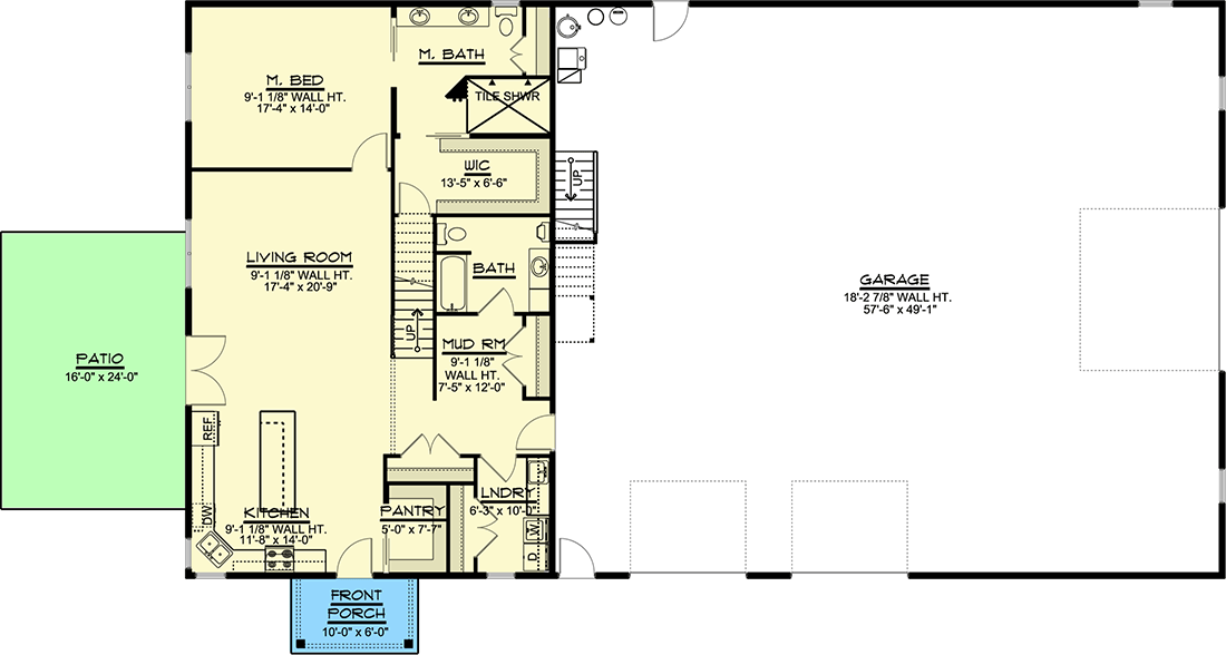
1st Floor
1,600 sq. ft.
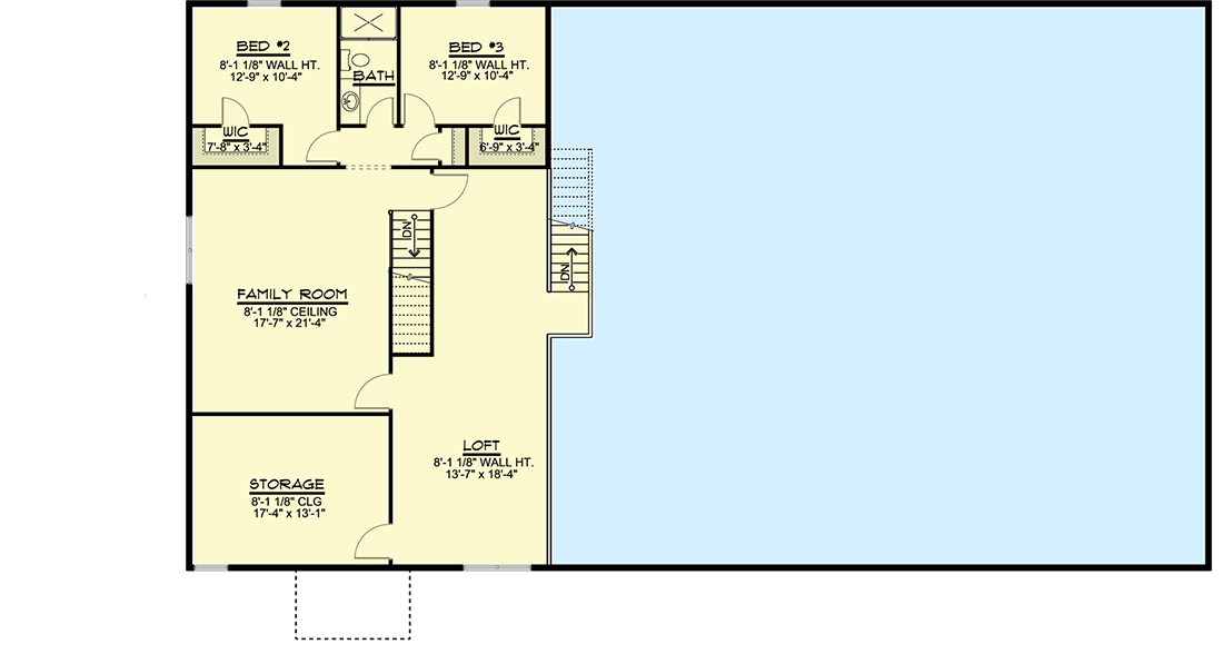
2nd Floor
1,592 sq. ft.
Porch, Front
72 sq. ft.
Bedrooms
3
Full bathrooms
3
Half bathrooms
1
Standard Foundations
Slab
Exterior Walls
2x6
Width
90' 0"
Depth
50' 0"
Max Ridge Height
27' 1"
Type
Attached
Area
2900 sq. ft.
Count
3 Cars
Entry Location
Side
First Floor
9'
Second Floor
8'
Primary Pitch
4 on 12
Secondary Pitch
4 on 12
Framing Type
Truss
Total Heated Area
3,192 sq. ft.
1st Floor
1,600 sq. ft.
2nd Floor
1,592 sq. ft.
Porch, Front
72 sq. ft.
Bedrooms
3
Full bathrooms
3
Half bathrooms
1
Standard Foundations
Slab
Exterior Walls
2x6
Width
90' 0"
Depth
50' 0"
Max Ridge Height
27' 1"
Type
Attached
Area
2900 sq. ft.
Count
3 Cars
Entry Location
Side
First Floor
9'
Second Floor
8'
Primary Pitch
4 on 12
Secondary Pitch
4 on 12
Framing Type
Truss