LogoLogo TaglineLogo Tagline
Loading...
Plan 59190ND

Simple Yet Elegant Design

Heated S.F.
1,559
Beds
3
Baths
2
Stories
2
Cars
2

Floor Plan

Plan 59190ND

Main Level
Main Level
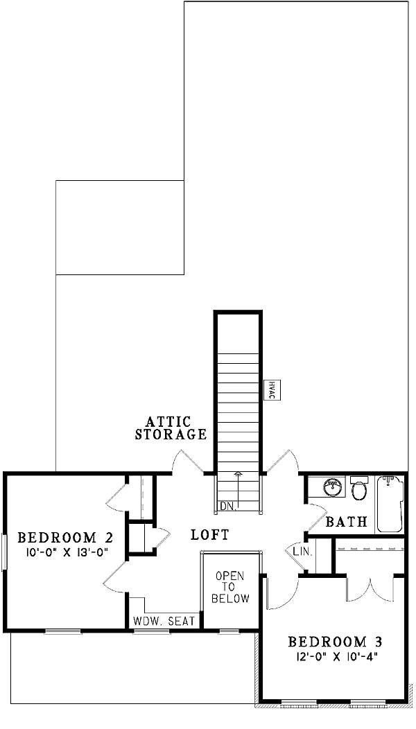
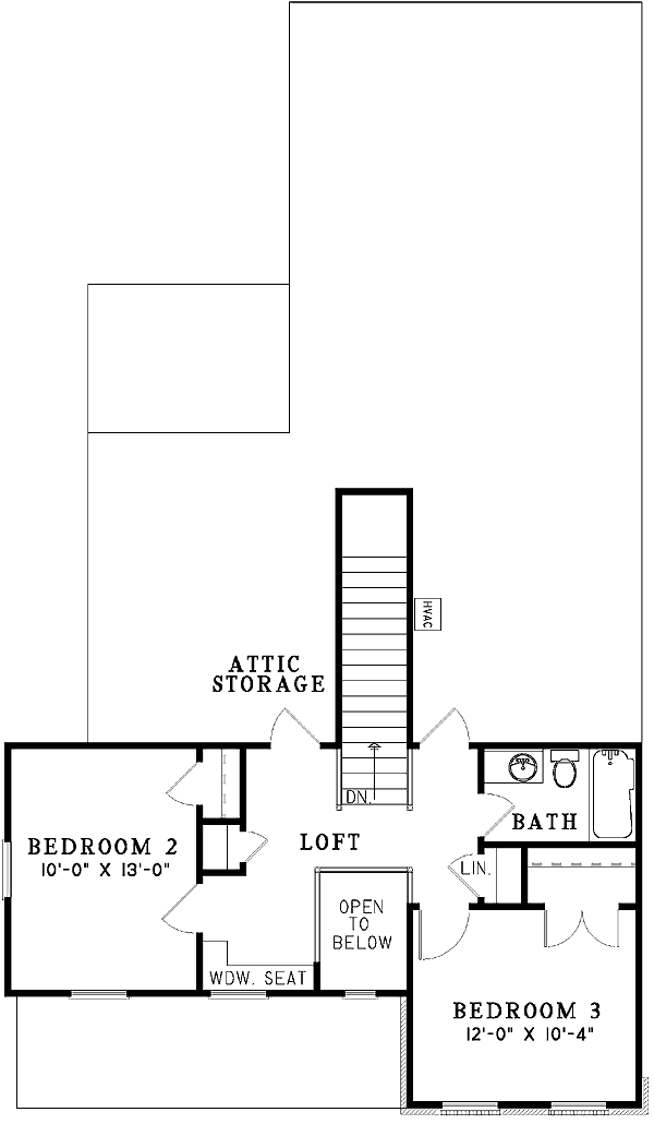
2nd Floor
2nd Floor

Plan 59190ND

M-F 9am-5pm EST |

1-203-761-8500

Main Level

Plan 59190ND: Simple Yet Elegant Design - Floor Plan - Main Level - Country, Craftsman

2nd Floor

Plan 59190ND: Simple Yet Elegant Design - Floor Plan - 2nd Floor - Country, Craftsman

Plan Details

  • This Arts and Crafts style home is simple yet elegant. A beaded ceiling and double columns set atop brick pillars enhancing the covered front porch.
  • As you enter the foyer, admire eight-inch columns inviting you into a spacious great room with fireplace and swinging door to the kitchen.
  • Family can enjoy a sunny breakfast nook adjoining the kitchen and accessing a rear-grilling porch.
  • Just across the hall is a formal dining room for large family gatherings or perhaps a den if desired.
  • For privacy and convenience, this split bedroom plan places the spacious master suite on the main level.
  • Two additional two bedrooms, a full bath and a loft area with window are located upstairs.

What's Included

  • Foundation Plan (1/4″ or 1/2″ = 1′)
  • Floor Plans (1/4″= 1′)
  • Set of Elevations (1/4″= 1′)
  • Miscellaneous Details (3/4″ = 1′)
  • Roof plan (bird's eye view of roof showing pitches, ridges and valleys
  • An electrical diagram showing a bird's-eye view of rooms with lights, fans to switches

What's Not Included

  • Architectural or Engineering Stamp - handled locally if required
  • Site Plan - handled locally when required
  • Mechanical Drawings (location of heating and air equipment and duct work) - your subcontractors handle this
  • Plumbing Drawings (drawings showing the actual plumbing pipe sizes and locations) - your subcontractors handle this
  • Energy calculations - handled locally when required

Starting at

Loading...
Price Match Guarantee
What's included?

FORMAT & LICENSE

Choose an option

$0

Not sure what to choose?

Pointer link icon

FOUNDATION

Choose an option

+$0

OPTIONS

Choose Additional Options

+$0

Loading...

Modify this Plan

Receive a free modification quote within 3 business days.

Loading...

Start with a Cost Report

Calculate the cost to build & furnish your home.

Loading...
Loading...

Square Footage Breakdown

Total Heated Area

1,559 sq. ft.

1st Floor

1,063 sq. ft.

2nd Floor

496 sq. ft.

Porch, Front

124 sq. ft.

Porch, Rear

88 sq. ft.

Beds/Baths

Bedrooms

3

Full bathrooms

2

Foundation Type

Standard Foundations

Crawl, Slab

Exterior Walls

Exterior Walls

2x4

Optional Type(s)

2x6

Dimensions

Width

34' 4"

Depth

59' 6"

Max Ridge Height

23' 0"

Garage

Type

Attached

Area

419 sq. ft.

Count

2 Cars

Entry Location

Side

Ceiling Heights

First Floor

9'

Second Floor

8'

Roof Details

Primary Pitch

7 on 12

Framing Type

Stick

Architectural Style

Country

Square Footage Breakdown

Total Heated Area

1,559 sq. ft.

1st Floor

1,063 sq. ft.

2nd Floor

496 sq. ft.

Porch, Front

124 sq. ft.

Porch, Rear

88 sq. ft.

Beds/Baths

Bedrooms

3

Full bathrooms

2

Foundation Type

Standard Foundations

Crawl, Slab

Exterior Walls

Exterior Walls

2x4

Optional Type(s)

2x6

Dimensions

Width

34' 4"

Depth

59' 6"

Max Ridge Height

23' 0"

Garage

Type

Attached

Area

419 sq. ft.

Count

2 Cars

Entry Location

Side

Ceiling Heights

First Floor

9'

Second Floor

8'

Roof Details

Primary Pitch

7 on 12

Framing Type

Stick

Architectural Style

* Please note that all sale prices and promotions featured on our website are subject to change without prior notice. While we strive to provide accurate and up-to-date information, occasional discrepancies may occur due to factors beyond our control. We encourage you to verify all details, including pricing and availability, before making any purchase. Exclusions or restrictions may apply to specific promotions. We reserve the right to modify or cancel any sale at our discretion. Thank you for your understanding and happy shopping!Let's go back to the top.