


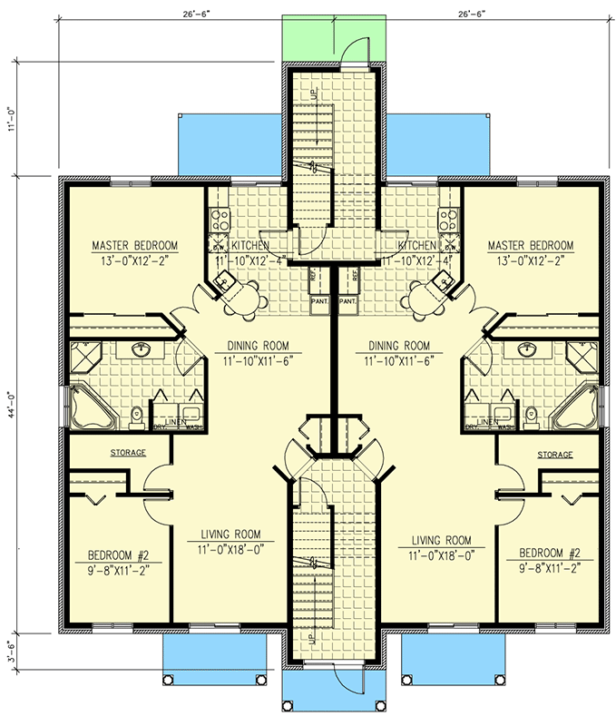
Total Heated Area
6,492 sq. ft.
1st Floor
2,164 sq. ft.
2nd Floor
2,164 sq. ft.
3rd Floor
2,164 sq. ft.
Bedrooms
10
Full bathrooms
6
Standard Foundations
Basement
Exterior Walls
2x6
Width
53' 0"
Depth
47' 6"
Max Ridge Height
43' 0"
First Floor
8'
Second Floor
8'
Primary Pitch
8 on 12
Secondary Pitch
10 on 12
Framing Type
Truss
Total Heated Area
6,492 sq. ft.
1st Floor
2,164 sq. ft.
2nd Floor
2,164 sq. ft.
3rd Floor
2,164 sq. ft.
Bedrooms
10
Full bathrooms
6
Standard Foundations
Basement
Exterior Walls
2x6
Width
53' 0"
Depth
47' 6"
Max Ridge Height
43' 0"
First Floor
8'
Second Floor
8'
Primary Pitch
8 on 12
Secondary Pitch
10 on 12
Framing Type
Truss