

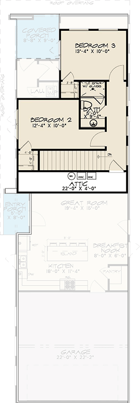
Total Heated Area
1,656 sq. ft.
1st Floor
1,178 sq. ft.
2nd Floor
478 sq. ft.
Porch, Combined
132 sq. ft.
Bedrooms
3
Full bathrooms
2
Half bathrooms
1
Standard Foundations
Crawl, Slab
Exterior Walls
2x4
Optional Type(s)
2x6
Width
25' 0"
Depth
78' 10"
Max Ridge Height
23' 7"
Type
Standard, Attached
Area
510 sq. ft.
Count
2 Cars
Entry Location
Side
First Floor
9'
Second Floor
8'
Primary Pitch
2 on 12
Framing Type
Stick
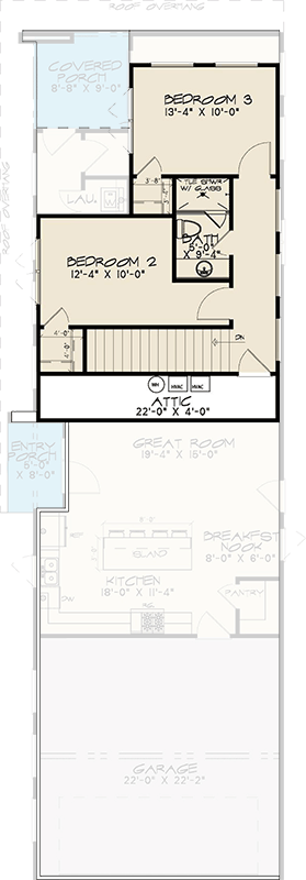
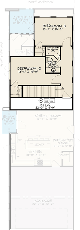
Total Heated Area
1,656 sq. ft.
1st Floor
1,178 sq. ft.
2nd Floor
478 sq. ft.
Porch, Combined
132 sq. ft.
Bedrooms
3
Full bathrooms
2
Half bathrooms
1
Standard Foundations
Crawl, Slab
Exterior Walls
2x4
Optional Type(s)
2x6
Width
25' 0"
Depth
78' 10"
Max Ridge Height
23' 7"
Type
Standard, Attached
Area
510 sq. ft.
Count
2 Cars
Entry Location
Side
First Floor
9'
Second Floor
8'
Primary Pitch
2 on 12
Framing Type
Stick