

Total Heated Area
1,000 sq. ft.
1st Floor
650 sq. ft.
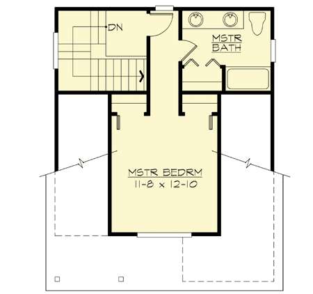
2nd Floor
350 sq. ft.
Porch, Front
76 sq. ft.
Bedrooms
2
Full bathrooms
2
Standard Foundations
Crawl
Exterior Walls
2x6
Width
24' 0"
Depth
30' 0"
Max Ridge Height
20' 0"
First Floor
8'
Second Floor
8'
Primary Pitch
6 on 12
Framing Type
Truss
Total Heated Area
1,000 sq. ft.
1st Floor
650 sq. ft.
2nd Floor
350 sq. ft.
Porch, Front
76 sq. ft.
Bedrooms
2
Full bathrooms
2
Standard Foundations
Crawl
Exterior Walls
2x6
Width
24' 0"
Depth
30' 0"
Max Ridge Height
20' 0"
First Floor
8'
Second Floor
8'
Primary Pitch
6 on 12
Framing Type
Truss