

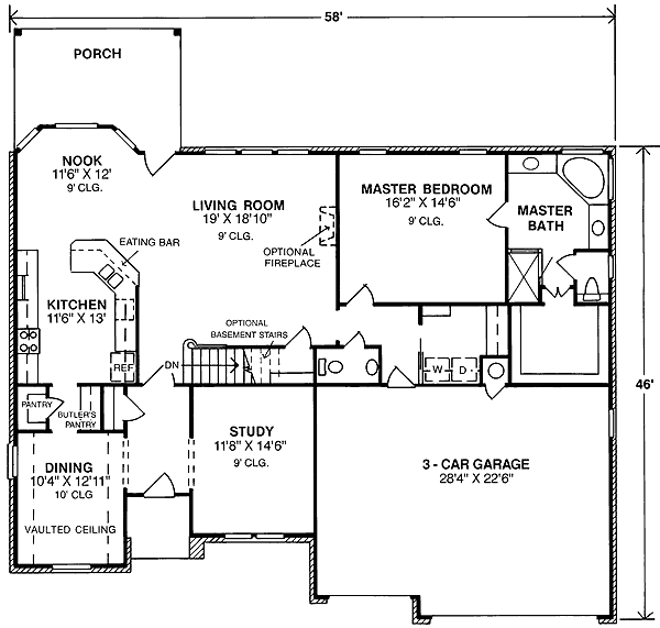
Total Heated Area
2,606 sq. ft.
1st Floor
1,793 sq. ft.
2nd Floor
813 sq. ft.
Porch, Front
192 sq. ft.
Bedrooms
4
Full bathrooms
3
Half bathrooms
1
Standard Foundations
Slab
Exterior Walls
2x4
Optional Type(s)
2x6
Width
58' 0"
Depth
50' 0"
Max Ridge Height
30' 0"
Type
Attached
Area
638 sq. ft.
Count
3 Cars
Entry Location
Front
First Floor
9'
Second Floor
8'
Framing Type
Stick
Total Heated Area
2,606 sq. ft.
1st Floor
1,793 sq. ft.
2nd Floor
813 sq. ft.
Porch, Front
192 sq. ft.
Bedrooms
4
Full bathrooms
3
Half bathrooms
1
Standard Foundations
Slab
Exterior Walls
2x4
Optional Type(s)
2x6
Width
58' 0"
Depth
50' 0"
Max Ridge Height
30' 0"
Type
Attached
Area
638 sq. ft.
Count
3 Cars
Entry Location
Front
First Floor
9'
Second Floor
8'
Framing Type
Stick