


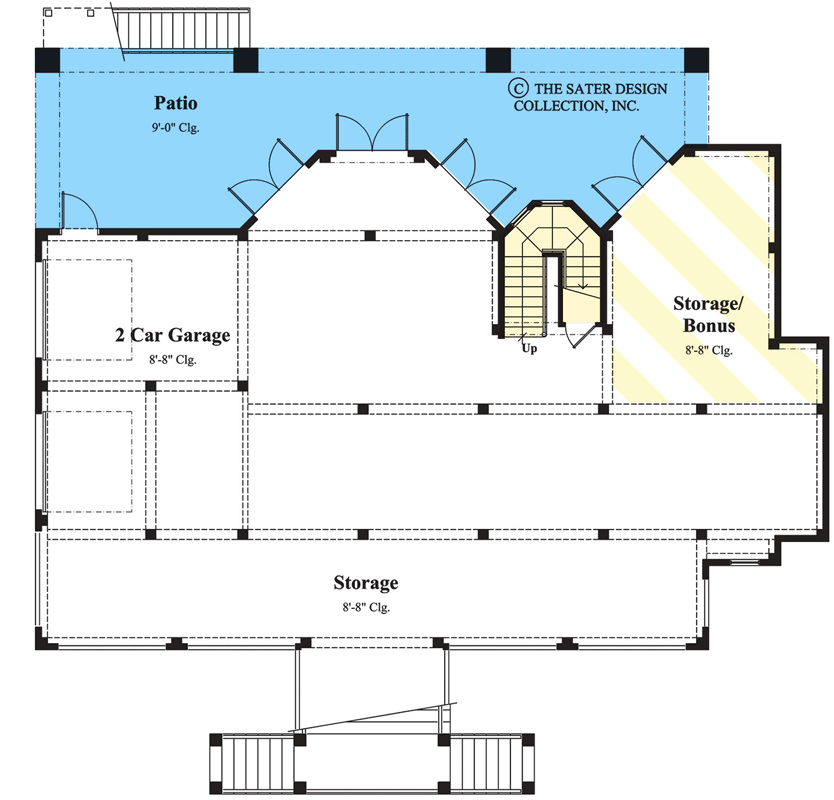
Total Heated Area
2,756 sq. ft.
1st Floor
1,855 sq. ft.
2nd Floor
901 sq. ft.
Bedrooms
3
Full bathrooms
3
Half bathrooms
1
Standard Foundations
Raise Island
Exterior Walls
2x6
Width
68' 4"
Depth
54' 4"
Max Ridge Height
38' 2"
Type
Attached
Count
2 Cars
Entry Location
Side
Total Heated Area
2,756 sq. ft.
1st Floor
1,855 sq. ft.
2nd Floor
901 sq. ft.
Bedrooms
3
Full bathrooms
3
Half bathrooms
1
Standard Foundations
Raise Island
Exterior Walls
2x6
Width
68' 4"
Depth
54' 4"
Max Ridge Height
38' 2"
Type
Attached
Count
2 Cars
Entry Location
Side