LogoLogo TaglineLogo Tagline
Loading...
Plan 5487LK

Southern Traditional House Plan with 3-Car Garage and Wrap Around Porch

Heated S.F.
2,313
Beds
3 - 4
Baths
2.5
Stories
2
Cars
3

Floor Plan

Plan 5487LK

Main Level
Main Level
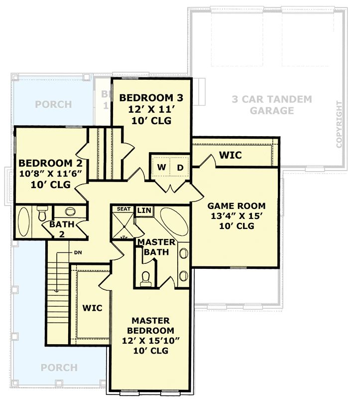
2nd Floor
2nd Floor

Plan 5487LK

M-F 9am-5pm EST |

1-203-761-8500

Main Level

Plan 5487LK: Southern Traditional House Plan with 3-Car Garage and Wrap Around Porch - Floor Plan - Main Level - Southern, Traditional

2nd Floor

Plan 5487LK: Southern Traditional House Plan with 3-Car Garage and Wrap Around Porch - Floor Plan - 2nd Floor - Southern, Traditional

Plan Details

  • This Southern Traditional house plan spans 2,313 finished sq ft, offering 3 to 4 bedrooms, 2 full baths, 1 half bath, and an 891 sq ft, 3-car rear-entry tandem garage.
  • Step onto the inviting wrap-around porch, entering a home designed with both formal and flexible spaces, including a formal dining room and a versatile flex room on the main level.
  • The heart of the home features an open-concept flow, likely connecting a spacious living area with a breakfast nook and a well-appointed kitchen boasting a butler walk-in pantry, perfect for daily living and entertaining.
  • The primary suite is thoughtfully located upstairs for privacy, while secondary bedrooms are clustered, also on the second floor, with convenient access to shared baths and an upstairs laundry.
  • Upstairs also offers a dedicated game or rec room, providing an ideal space for family fun or a casual retreat.
  • The generous 302 sq ft combined porch area, featuring a welcoming wrap-around design, offers ample opportunities for relaxed outdoor living and enjoying the surroundings.

What's Included

  • FLOOR PLAN: Showing all dimensions, window & door locations, laminated beams, columns, floor materials, ceiling heights, fireplace size, window & door schedules and specifications 
  • FOUNDATION PLAN: Dimensioned plan detailing the location and size of footings, slabs, brick shelves reinforcing steel, direction and size of ceiling joists, Laminate beam locations, specifications covering soil pressure, concrete strength, and requirements for the contractor to follow accepted practices. 
  • ELECTRICAL PLAN: Specifications, notes, schedules, and plan defining the location of panels, service, lighting fixtures, switches and outlets. 
  • ELEVATIONS: The front, rear and side elevations of the house as drawn. Shows placement of doors & windows on exterior of house, as well as roof pitches, and locations of chimney, exterior vents, etc. and also includes any necessary details. 
  • ROOF PLANS: Provides a bird's eye view of the roof's valleys, ridges and dormers, if applicable
  • BUILDING CROSS SECTION: Shows details of the house as though it were cut in slices from the roof to the foundation. The cross sections detail the construction of the home, insulation, flooring and roofing.
  • INTERIOR ELEVATIONS: Show's how the details of cabinets such as those found in the kitchen, bathroom and utility room, fireplaces and other special interior features.
  • NOTES AND DETAILS: Provides information for structural specifications, excavating and grading, masonry and concrete work, carpentry and wood specifications, thermal and moisture protection and specifications about drywall, tile, flooring, glazing, caulking and sealants.

What's Not Included

  • Architectural or Engineering Stamp - handled locally if required
  • Site Plan - handled locally when required
  • Mechanical Drawings (location of heating and air equipment and duct work) - your subcontractors handle this
  • Plumbing Drawings (drawings showing the actual plumbing pipe sizes and locations) - your subcontractors handle this
  • Energy calculations - handled locally when required

Starting at

Loading...
Price Match Guarantee
What's included?

FORMAT & LICENSE

Choose an option

$0

Not sure what to choose?

Pointer link icon

FOUNDATION

Choose an option

+$0

OPTIONS

Choose Additional Options

+$0

Loading...

Modify this Plan

Receive a free modification quote within 3 business days.

Loading...

Start with a Cost Report

Calculate the cost to build & furnish your home.

Loading...
Loading...

Square Footage Breakdown

Total Heated Area

2,313 sq. ft.

1st Floor

1,048 sq. ft.

2nd Floor

1,265 sq. ft.

Porch, Combined

302 sq. ft.

Beds/Baths

Bedrooms

3 or 4

Full bathrooms

2

Half bathrooms

1

Foundation Type

Standard Foundations

Slab

Exterior Walls

Exterior Walls

2x4

Optional Type(s)

2x6

Dimensions

Width

53' 2"

Depth

58' 10"

Max Ridge Height

28' 10"

Garage

Type

Attached

Area

891 sq. ft.

Count

3 Cars

Entry Location

Rear

Roof Details

Framing Type

Stick

Architectural Style

Southern

Square Footage Breakdown

Total Heated Area

2,313 sq. ft.

1st Floor

1,048 sq. ft.

2nd Floor

1,265 sq. ft.

Porch, Combined

302 sq. ft.

Beds/Baths

Bedrooms

3 or 4

Full bathrooms

2

Half bathrooms

1

Foundation Type

Standard Foundations

Slab

Exterior Walls

Exterior Walls

2x4

Optional Type(s)

2x6

Dimensions

Width

53' 2"

Depth

58' 10"

Max Ridge Height

28' 10"

Garage

Type

Attached

Area

891 sq. ft.

Count

3 Cars

Entry Location

Rear

Roof Details

Framing Type

Stick

Architectural Style

* Please note that all sale prices and promotions featured on our website are subject to change without prior notice. While we strive to provide accurate and up-to-date information, occasional discrepancies may occur due to factors beyond our control. We encourage you to verify all details, including pricing and availability, before making any purchase. Exclusions or restrictions may apply to specific promotions. We reserve the right to modify or cancel any sale at our discretion. Thank you for your understanding and happy shopping!Let's go back to the top.