LogoLogo TaglineLogo Tagline
Loading...
Plan 810013RBT

Southern Traditional House Plan with Flex Room and Full Wrap-Around Porch

Heated S.F.
2,719
Beds
3 - 4
Baths
3.5
Stories
1
Cars
2- 3

Floor Plan

Plan 810013RBT

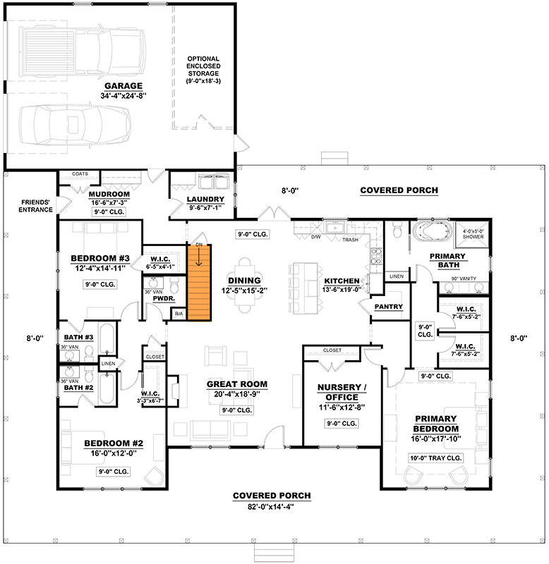
Main Level
Main Level
Optional 3-Car Rear Garage
Optional 3-Car Rear Garage
Main Level - Basement Stairs Location
Main Level - Basement Stairs Location

Plan 810013RBT

M-F 9am-5pm EST |

1-203-761-8500

Main Level

Plan 810013RBT: Southern Traditional House Plan with Flex Room and Full Wrap-Around Porch - Floor Plan - Main Level - Country, Ranch, Southern

Optional 3-Car Rear Garage

Plan 810013RBT: Southern Traditional House Plan with Flex Room and Full Wrap-Around Porch - Floor Plan - Optional 3-Car Rear Garage - Country, Ranch, Southern

Main Level - Basement Stairs Location

Plan 810013RBT: Southern Traditional House Plan with Flex Room and Full Wrap-Around Porch - Floor Plan - Main Level - Basement Stairs Location - Country, Ranch, Southern

Plan Details

  • This  one-story southern traditional house plans has a porch that wraps around all four sides and a decorative dormer centered over the front door.
  • A spacious great room greets you at the front door with an open-concept layout connecting the communal living spaces.
  • French doors on the back wall open to the porch. Nearby, the kitchen has an island with sating for up to four people, a sink centered below a window looking out back and a walk-in pantry with great storage.
  • The primary bedroom occupies the entire right side of the home and boasts twin closets and a 5-fixture bathroom. A flex space adjacent to the bedroom can be used as a home office or a nursery.
  • Two additional bedroom suites line the left side of the home and each has its own bath.
  • A large mudroom serves as a buffer between the home and the garage, which comes in either a 2-car side-entry version or a 3-car rear-entry version.
  • Related Plan: Get an alternate exterior with house plan 810008RBT.

What's Included

  • Cover page with area tabulation notes and specifications
  • Foundation plan and details
  • Floor plans
  • Roof plan
  • Exterior elevations
  • Kitchen plan and interior elevations
  • Electrical Layout (Suggested)

What's Not Included

  • Architectural or Engineering Stamp - handled locally if required
  • Site Plan - handled locally when required
  • Mechanical Drawings (location of heating and air equipment and duct work) - your subcontractors handle this
  • Plumbing Drawings (drawings showing the actual plumbing pipe sizes and locations) - your subcontractors handle this
  • Energy calculations - handled locally when required

Starting at

Loading...
Price Match Guarantee
What's included?

FORMAT & LICENSE

Choose an option

$0

Not sure what to choose?

Pointer link icon

FOUNDATION

Choose an option

+$0

OPTIONS

Choose Additional Options

+$0

Loading...

Modify this Plan

Receive a free modification quote within 3 business days.

Loading...

Start with a Cost Report

Calculate the cost to build & furnish your home.

Loading...
Loading...

Square Footage Breakdown

Total Heated Area

2,719 sq. ft.

1st Floor

2,719 sq. ft.

Porch, Combined

1,943 sq. ft.

Beds/Baths

Bedrooms

3 or 4

Full bathrooms

3

Half bathrooms

1

Foundation Type

Standard Foundations

Slab

Exterior Walls

Exterior Walls

2x6

Dimensions

Width

82' 0"

Depth

82' 0"

Max Ridge Height

28' 9"

Garage

Type

Attached

Area

905 sq. ft.

Count

2 or 3 Cars

Entry Location

Side, Rear

Ceiling Heights

First Floor

9'

Roof Details

Primary Pitch

8 on 12

Architectural Style

Country

Square Footage Breakdown

Total Heated Area

2,719 sq. ft.

1st Floor

2,719 sq. ft.

Porch, Combined

1,943 sq. ft.

Beds/Baths

Bedrooms

3 or 4

Full bathrooms

3

Half bathrooms

1

Foundation Type

Standard Foundations

Slab

Exterior Walls

Exterior Walls

2x6

Dimensions

Width

82' 0"

Depth

82' 0"

Max Ridge Height

28' 9"

Garage

Type

Attached

Area

905 sq. ft.

Count

2 or 3 Cars

Entry Location

Side, Rear

Ceiling Heights

First Floor

9'

Roof Details

Primary Pitch

8 on 12

Architectural Style

* Please note that all sale prices and promotions featured on our website are subject to change without prior notice. While we strive to provide accurate and up-to-date information, occasional discrepancies may occur due to factors beyond our control. We encourage you to verify all details, including pricing and availability, before making any purchase. Exclusions or restrictions may apply to specific promotions. We reserve the right to modify or cancel any sale at our discretion. Thank you for your understanding and happy shopping!Let's go back to the top.