

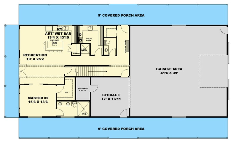
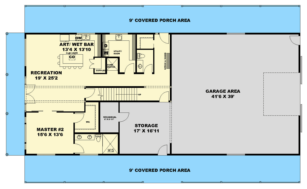
Total Heated Area
3,481 sq. ft.
1st Floor
1,561 sq. ft.
2nd Floor
1,920 sq. ft.
Bedrooms
3
Full bathrooms
3
Half bathrooms
1
Standard Foundations
Slab
Exterior Walls
2x6
Width
40' 0"
Depth
90' 0"
Max Ridge Height
32' 11"
Type
Attached, Drive Under
Area
2034 sq. ft.
Count
3 Cars
Entry Location
Side
Lower Level
11'
First Floor
8' 1"
Garage
20' 2''
Primary Pitch
4 on 12
Secondary Pitch
12 on 12
Framing Type
Truss
Total Heated Area
3,481 sq. ft.
1st Floor
1,561 sq. ft.
2nd Floor
1,920 sq. ft.
Bedrooms
3
Full bathrooms
3
Half bathrooms
1
Standard Foundations
Slab
Exterior Walls
2x6
Width
40' 0"
Depth
90' 0"
Max Ridge Height
32' 11"
Type
Attached, Drive Under
Area
2034 sq. ft.
Count
3 Cars
Entry Location
Side
Lower Level
11'
First Floor
8' 1"
Garage
20' 2''
Primary Pitch
4 on 12
Secondary Pitch
12 on 12
Framing Type
Truss