


Total Heated Area
8,096 sq. ft.
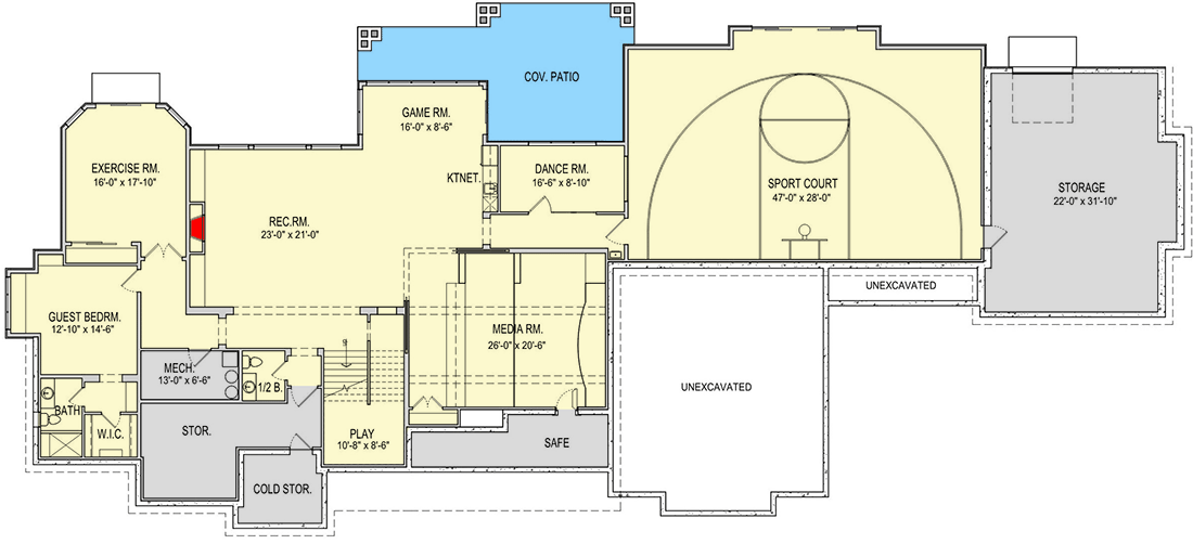
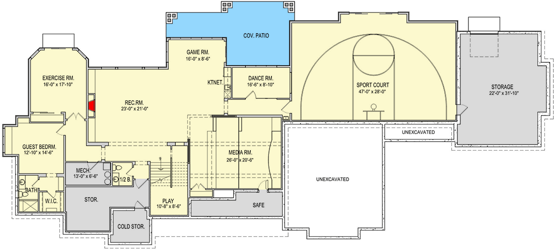
Lower Level
2,998 sq. ft.
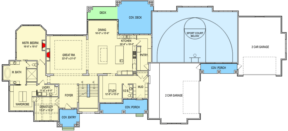
1st Floor
3,388 sq. ft.
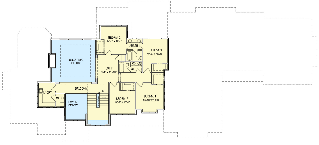
2nd Floor
1,711 sq. ft.
Bedrooms
6
Full bathrooms
4
Half bathrooms
1
Standard Foundations
Walkout
Exterior Walls
2x6
Width
156' 10"
Depth
70' 0"
Max Ridge Height
32' 2"
Type
Attached
Area
1755 sq. ft.
Count
4 Cars
Entry Location
Front, Side
Lower Level
10'
First Floor
10'
Second Floor
9'
Total Heated Area
8,096 sq. ft.
Lower Level
2,998 sq. ft.
1st Floor
3,388 sq. ft.
2nd Floor
1,711 sq. ft.
Bedrooms
6
Full bathrooms
4
Half bathrooms
1
Standard Foundations
Walkout
Exterior Walls
2x6
Width
156' 10"
Depth
70' 0"
Max Ridge Height
32' 2"
Type
Attached
Area
1755 sq. ft.
Count
4 Cars
Entry Location
Front, Side
Lower Level
10'
First Floor
10'
Second Floor
9'