


Total Heated Area
7,480 sq. ft.
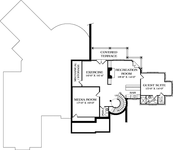
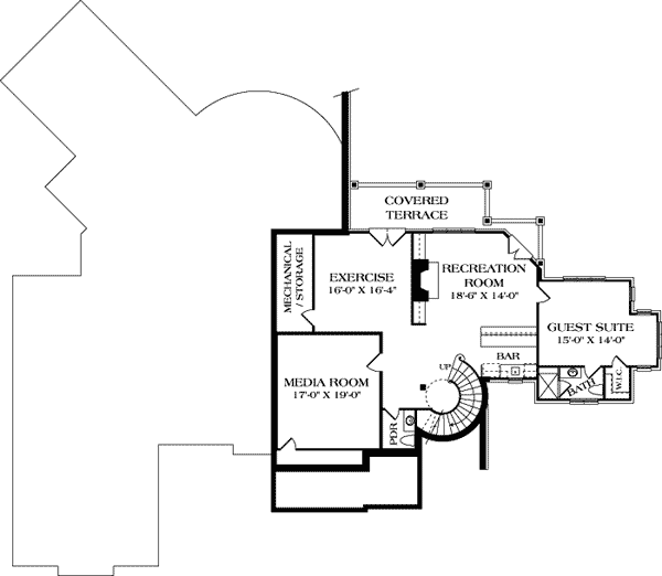
Lower Level
1,749 sq. ft.
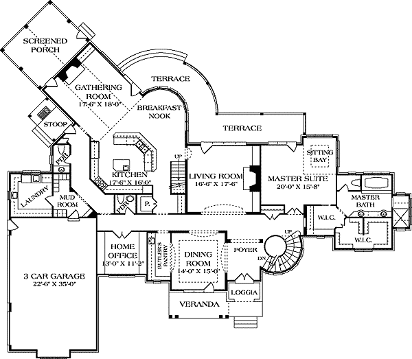
1st Floor
3,544 sq. ft.
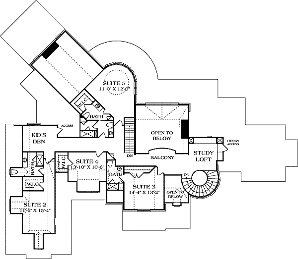
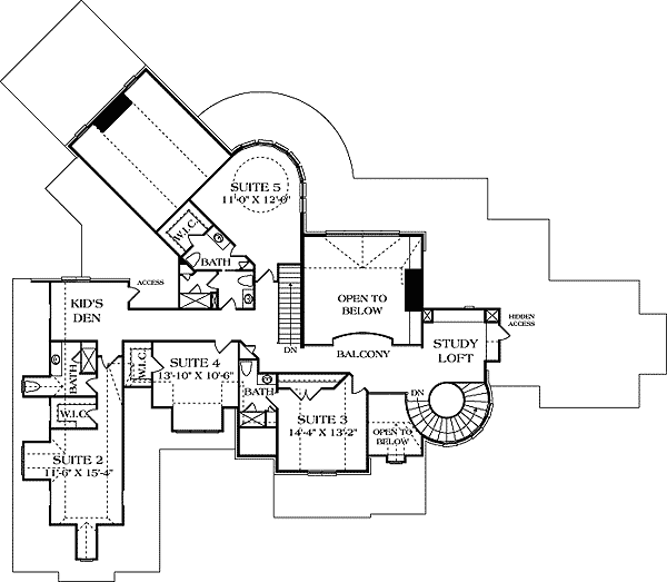
2nd Floor
2,187 sq. ft.
Bedrooms
6
Full bathrooms
5
Half bathrooms
4
Standard Foundations
Basement
Exterior Walls
2x4
Width
109' 3"
Depth
95' 4"
Type
Attached
Area
836 sq. ft.
Count
3 Cars
Entry Location
Side
First Floor
10'
Second Floor
9'
Framing Type
Stick
Total Heated Area
7,480 sq. ft.
Lower Level
1,749 sq. ft.
1st Floor
3,544 sq. ft.
2nd Floor
2,187 sq. ft.
Bedrooms
6
Full bathrooms
5
Half bathrooms
4
Standard Foundations
Basement
Exterior Walls
2x4
Width
109' 3"
Depth
95' 4"
Type
Attached
Area
836 sq. ft.
Count
3 Cars
Entry Location
Side
First Floor
10'
Second Floor
9'
Framing Type
Stick