

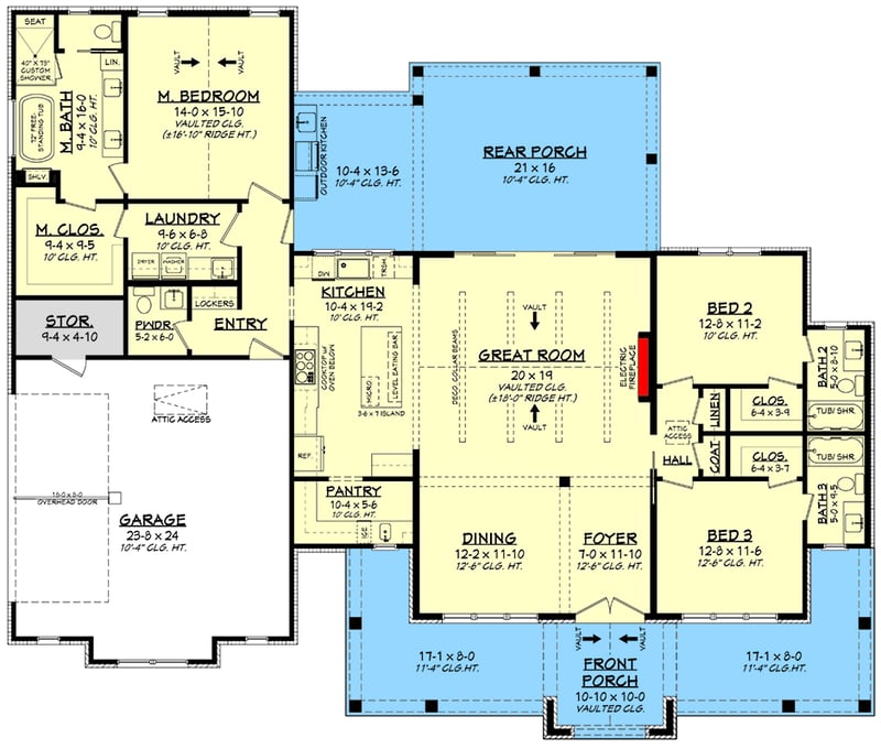
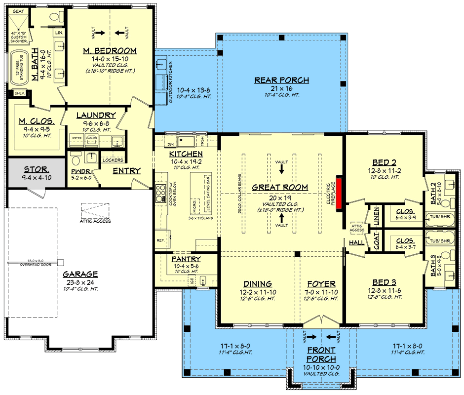
Total Heated Area
2,143 sq. ft.
1st Floor
2,143 sq. ft.
Porch, Front
450 sq. ft.
Porch, Rear
476 sq. ft.
Storage
50 sq. ft.
Bedrooms
3
Full bathrooms
3
Half bathrooms
1
Standard Foundations
Slab
Exterior Walls
2x4
Optional Type(s)
2x6
Width
74' 2"
Depth
62' 8"
Max Ridge Height
28' 0"
Type
Attached, Standard
Area
609 sq. ft.
Count
2 Cars
Entry Location
Side
First Floor
10'
Primary Pitch
12 on 12
Secondary Pitch
3.5 on 12
Framing Type
Stick
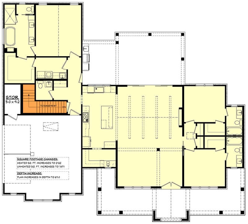
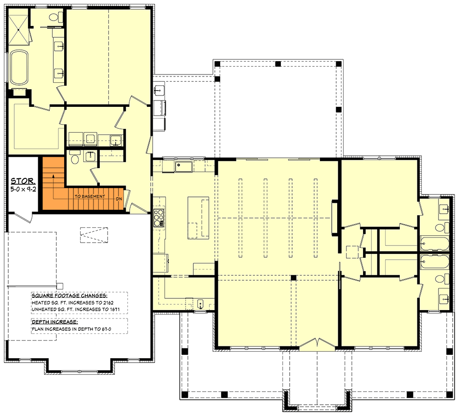
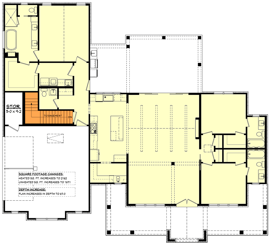
Total Heated Area
2,143 sq. ft.
1st Floor
2,143 sq. ft.
Porch, Front
450 sq. ft.
Porch, Rear
476 sq. ft.
Storage
50 sq. ft.
Bedrooms
3
Full bathrooms
3
Half bathrooms
1
Standard Foundations
Slab
Exterior Walls
2x4
Optional Type(s)
2x6
Width
74' 2"
Depth
62' 8"
Max Ridge Height
28' 0"
Type
Attached, Standard
Area
609 sq. ft.
Count
2 Cars
Entry Location
Side
First Floor
10'
Primary Pitch
12 on 12
Secondary Pitch
3.5 on 12
Framing Type
Stick