


Total Heated Area
4,362 sq. ft.
1st Floor
2,800 sq. ft.
2nd Floor
1,562 sq. ft.
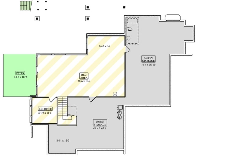
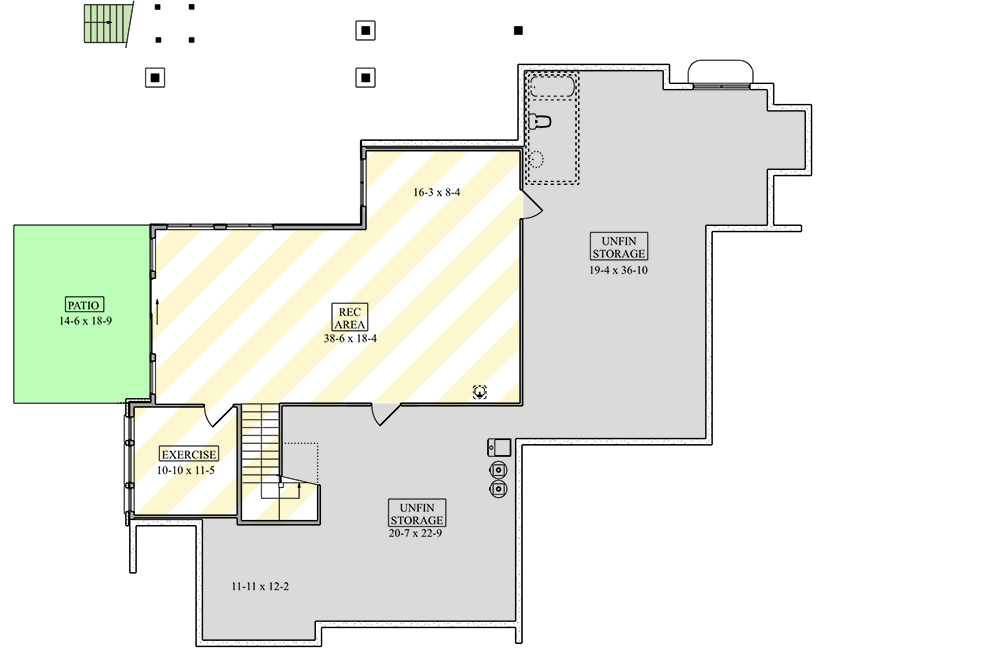
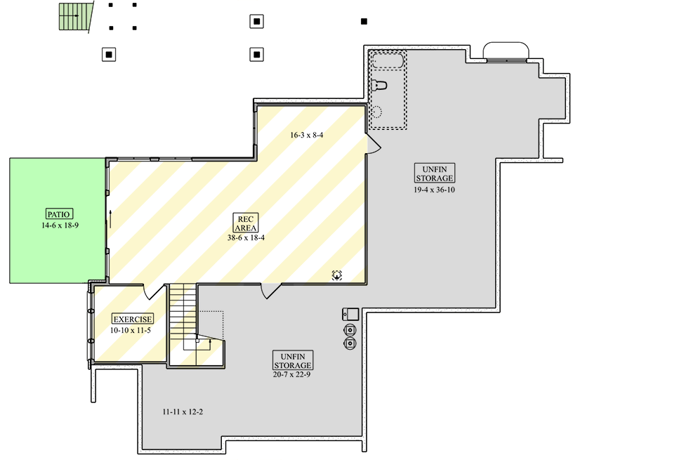
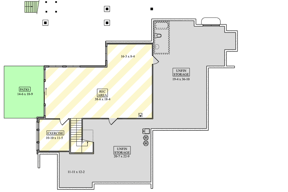
Basement Unfinished
1,138 sq. ft.
Optional Lower Level
1,618 sq. ft.
Deck & Porch
1,252 sq. ft.
Bedrooms
4
Full bathrooms
3
Half bathrooms
1
Standard Foundations
Walkout
Exterior Walls
2x6
Width
82' 0"
Depth
75' 6"
Max Ridge Height
32' 8"
Type
Attached, Standard
Area
1242 sq. ft.
Count
3 Cars
Entry Location
Front, Side
Lower Level
10'
First Floor
10'
Second Floor
9'
Primary Pitch
9 on 12
Secondary Pitch
3 on 12
Total Heated Area
4,362 sq. ft.
1st Floor
2,800 sq. ft.
2nd Floor
1,562 sq. ft.
Basement Unfinished
1,138 sq. ft.
Optional Lower Level
1,618 sq. ft.
Deck & Porch
1,252 sq. ft.
Bedrooms
4
Full bathrooms
3
Half bathrooms
1
Standard Foundations
Walkout
Exterior Walls
2x6
Width
82' 0"
Depth
75' 6"
Max Ridge Height
32' 8"
Type
Attached, Standard
Area
1242 sq. ft.
Count
3 Cars
Entry Location
Front, Side
Lower Level
10'
First Floor
10'
Second Floor
9'
Primary Pitch
9 on 12
Secondary Pitch
3 on 12