


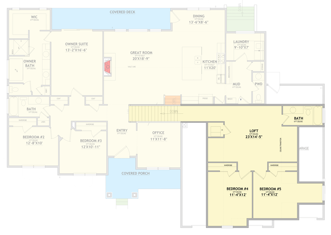
Total Heated Area
3,079 sq. ft.
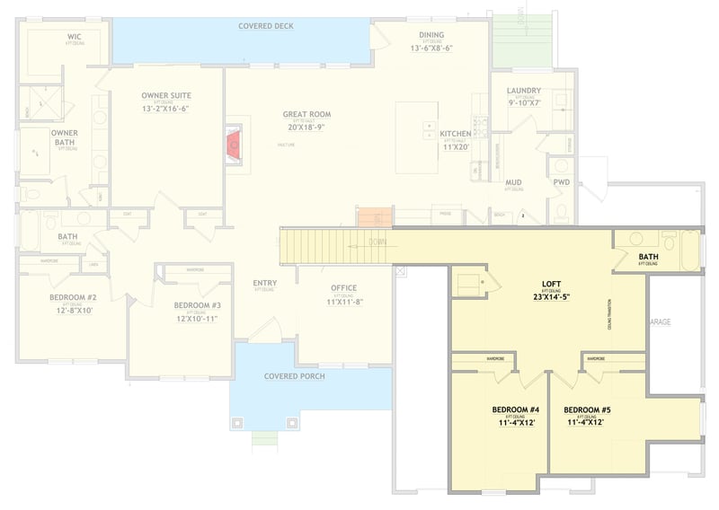
1st Floor
2,230 sq. ft.
2nd Floor
849 sq. ft.
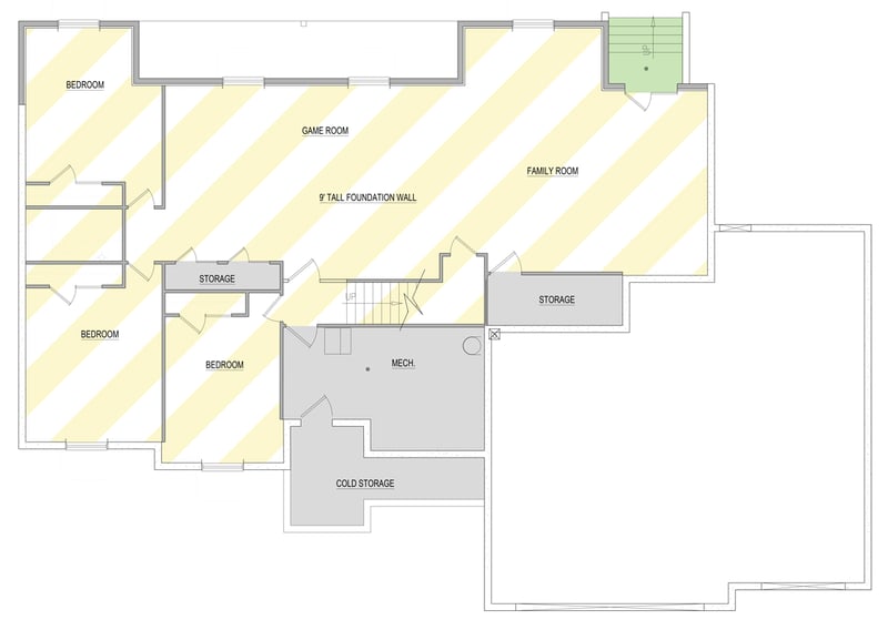
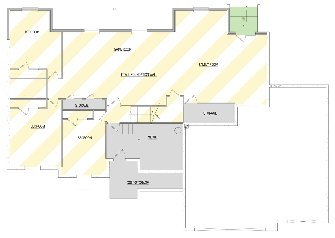
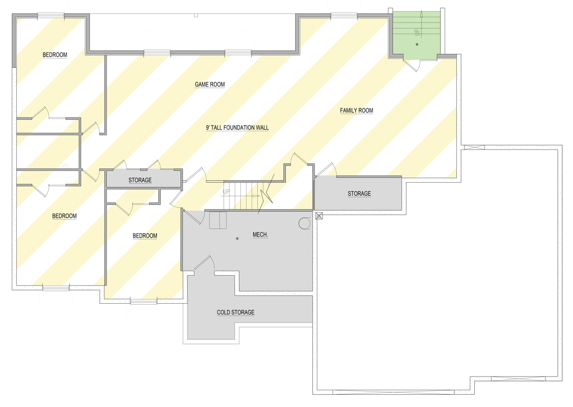
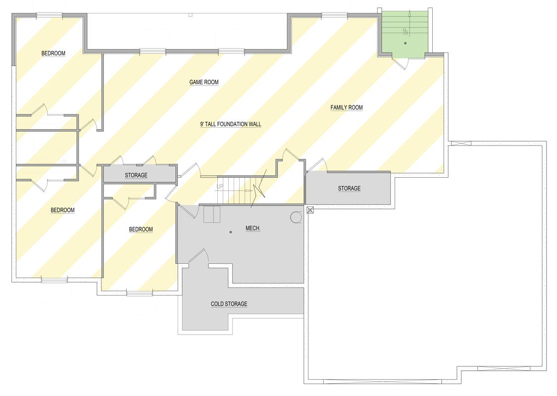
Basement Unfinished
2,203 sq. ft.
Bedrooms
5, 6, 7, or 8
Full bathrooms
3
Half bathrooms
1
Standard Foundations
Daylight
Exterior Walls
2x6
Width
81' 7"
Depth
56' 6"
Max Ridge Height
27' 2"
Type
Standard
Area
1107 sq. ft.
Count
3 Cars
Entry Location
Front
Lower Level
9'
First Floor
9'
Second Floor
8'
Primary Pitch
9 on 12
Framing Type
Truss
Total Heated Area
3,079 sq. ft.
1st Floor
2,230 sq. ft.
2nd Floor
849 sq. ft.
Basement Unfinished
2,203 sq. ft.
Bedrooms
5, 6, 7, or 8
Full bathrooms
3
Half bathrooms
1
Standard Foundations
Daylight
Exterior Walls
2x6
Width
81' 7"
Depth
56' 6"
Max Ridge Height
27' 2"
Type
Standard
Area
1107 sq. ft.
Count
3 Cars
Entry Location
Front
Lower Level
9'
First Floor
9'
Second Floor
8'
Primary Pitch
9 on 12
Framing Type
Truss