LogoLogo TaglineLogo Tagline
Loading...
Plan 135023GRA

Split Bedroom Craftsman House Plan with a Finished Walkout Basement Option

Heated S.F.
1,822
Beds
2 - 3
Baths
2.5 - 3.5
Stories
1
Cars
3

Floor Plan

Plan 135023GRA

Main Level
Main Level
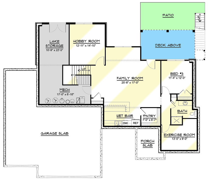
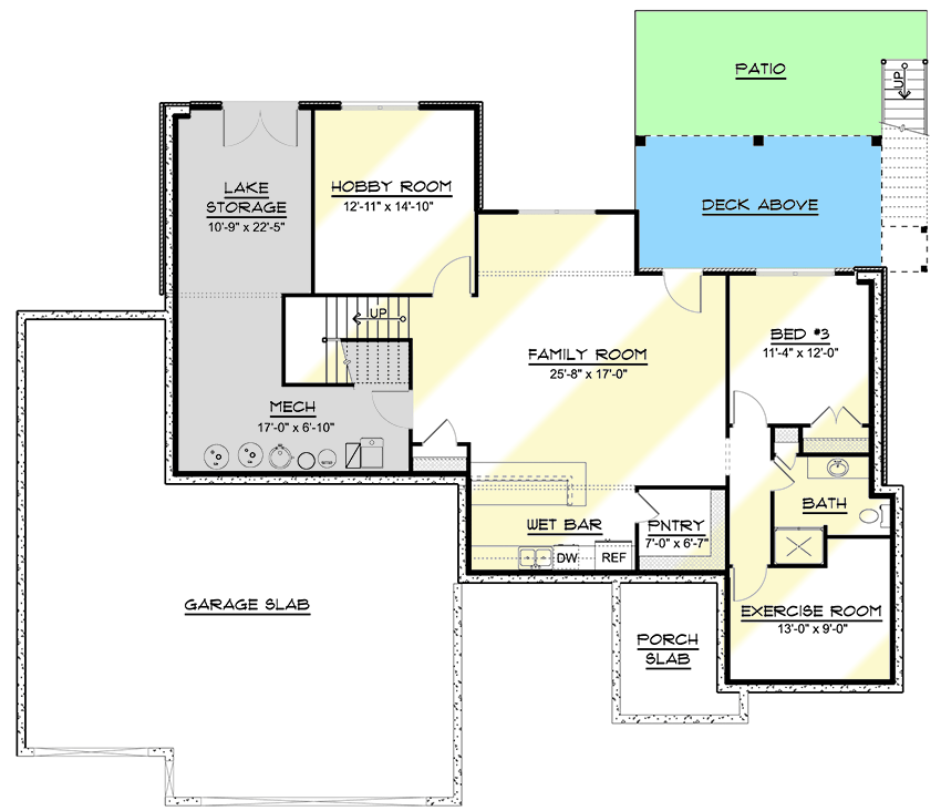
Optional Lower Level
Optional Lower Level

Plan 135023GRA

M-F 9am-5pm EST |

1-203-761-8500

Main Level

Plan 135023GRA: Split Bedroom Craftsman House Plan with a Finished Walkout Basement Option - Floor Plan - Main Level - Country, Craftsman, Mountain, New American, Ranch, Traditional

Optional Lower Level

Plan 135023GRA: Split Bedroom Craftsman House Plan with a Finished Walkout Basement Option - Floor Plan - Optional Lower Level - Country, Craftsman, Mountain, New American, Ranch, Traditional

Plan Details

  • This split bedroom Craftsman house plan offers you the convenience of one-level living and the freedom to expand to a lower level with the optional finished walkout basement included with your purchase making this home great for your water view or rear sloping mountain lot.
  • An open floor plan combines the great room, dining room and kitchen into a single entertaining space. Views extend to the back and a door in the dining room takes you to your vaulted covered deck.
  • The master suite occupies the left side of the home and has a large walk-in closet. A second bedroom is located across the home and has its own bath.
  • Get a third bedroom and bath if you decide to finish the lower level. You'll also get a large family room with a bar and pantry as well as two rec spaces. Storage, mechanical space and outdoor access complete this level.
  • Related Plan: Get an alternate version with house plan 135201GRA.

What's Included

  • Elevations
  • Fully Dimensioned Floor Plans
  • Roof Plan & Sections
  • Foundation plan
  • General Notes
  • Suggested Electrical Layout
View Sample Plan

What's Not Included

  • Architectural or Engineering Stamp - handled locally if required
  • Site Plan - handled locally when required
  • Mechanical Drawings (location of heating and air equipment and duct work) - your subcontractors handle this
  • Plumbing Drawings (drawings showing the actual plumbing pipe sizes and locations) - your subcontractors handle this
  • Energy calculations - handled locally when required

Starting at

Loading...
Price Match Guarantee
What's included?

FORMAT & LICENSE

Choose an option

$0

Not sure what to choose?

Pointer link icon

FOUNDATION

Choose an option

+$0

OPTIONS

Choose Additional Options

+$0

Loading...

Modify this Plan

Receive a free modification quote within 3 business days.

Loading...

Start with a Cost Report

Calculate the cost to build & furnish your home.

Loading...
Loading...

Square Footage Breakdown

Total Heated Area

1,822 sq. ft.

1st Floor

1,822 sq. ft.

Optional Lower Level

1,821 sq. ft.

Porch, Combined

130 sq. ft.

Deck

220 sq. ft.

Covered Patio

327 sq. ft.

Beds/Baths

Bedrooms

2 or 3

Full bathrooms

2 or 3

Half bathrooms

1

Foundation Type

Standard Foundations

Walkout

Exterior Walls

Exterior Walls

2x4

Optional Type(s)

2x6

Dimensions

Width

71' 8"

Depth

56' 7"

Max Ridge Height

20' 11"

Garage

Type

Attached

Area

1054 sq. ft.

Count

3 Cars

Entry Location

Front

Roof Details

Primary Pitch

9 on 12

Architectural Style

Country

Plan Collections

Square Footage Breakdown

Total Heated Area

1,822 sq. ft.

1st Floor

1,822 sq. ft.

Optional Lower Level

1,821 sq. ft.

Porch, Combined

130 sq. ft.

Deck

220 sq. ft.

Covered Patio

327 sq. ft.

Beds/Baths

Bedrooms

2 or 3

Full bathrooms

2 or 3

Half bathrooms

1

Foundation Type

Standard Foundations

Walkout

Exterior Walls

Exterior Walls

2x4

Optional Type(s)

2x6

Dimensions

Width

71' 8"

Depth

56' 7"

Max Ridge Height

20' 11"

Garage

Type

Attached

Area

1054 sq. ft.

Count

3 Cars

Entry Location

Front

Roof Details

Primary Pitch

9 on 12

Plan Collections

* Please note that all sale prices and promotions featured on our website are subject to change without prior notice. While we strive to provide accurate and up-to-date information, occasional discrepancies may occur due to factors beyond our control. We encourage you to verify all details, including pricing and availability, before making any purchase. Exclusions or restrictions may apply to specific promotions. We reserve the right to modify or cancel any sale at our discretion. Thank you for your understanding and happy shopping!Let's go back to the top.