

Total Heated Area
1,735 sq. ft.
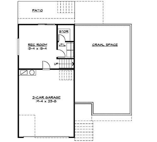
Lower Level
320 sq. ft.
1st Floor
1,415 sq. ft.
Bedrooms
3
Full bathrooms
2
Half bathrooms
1
Standard Foundations
Crawl
Exterior Walls
2x6
Width
40' 0"
Depth
42' 0"
Max Ridge Height
23' 0"
Type
Drive Under
Area
480 sq. ft.
Count
2 Cars
Entry Location
Front
Lower Level
8'
First Floor
8'
Primary Pitch
7 on 12
Framing Type
Truss
Total Heated Area
1,735 sq. ft.
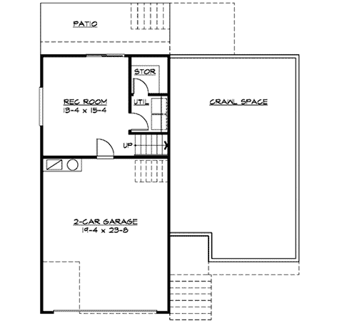
Lower Level
320 sq. ft.
1st Floor
1,415 sq. ft.
Bedrooms
3
Full bathrooms
2
Half bathrooms
1
Standard Foundations
Crawl
Exterior Walls
2x6
Width
40' 0"
Depth
42' 0"
Max Ridge Height
23' 0"
Type
Drive Under
Area
480 sq. ft.
Count
2 Cars
Entry Location
Front
Lower Level
8'
First Floor
8'
Primary Pitch
7 on 12
Framing Type
Truss