

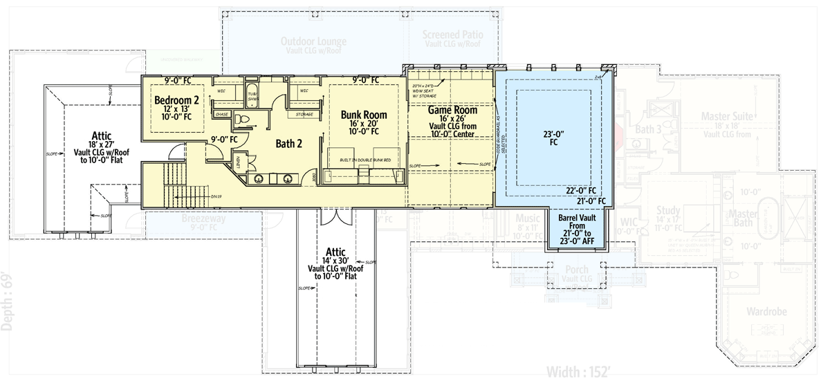
Total Heated Area
5,487 sq. ft.
1st Floor
3,895 sq. ft.
2nd Floor
1,595 sq. ft.
Attic
968 sq. ft.
Bedrooms
3
Full bathrooms
4
Standard Foundations
Slab
Exterior Walls
2x4
Width
152' 0"
Depth
69' 0"
Max Ridge Height
37' 0"
Type
Attached
Area
1 sq. ft.
Count
4 Cars
Entry Location
Front, Side
Primary Pitch
12 on 12
Secondary Pitch
3 on 12
Framing Type
Stick
Total Heated Area
5,487 sq. ft.
1st Floor
3,895 sq. ft.
2nd Floor
1,595 sq. ft.
Attic
968 sq. ft.
Bedrooms
3
Full bathrooms
4
Standard Foundations
Slab
Exterior Walls
2x4
Width
152' 0"
Depth
69' 0"
Max Ridge Height
37' 0"
Type
Attached
Area
1 sq. ft.
Count
4 Cars
Entry Location
Front, Side
Primary Pitch
12 on 12
Secondary Pitch
3 on 12
Framing Type
Stick