

Total Heated Area
2,214 sq. ft.
1st Floor
1,209 sq. ft.
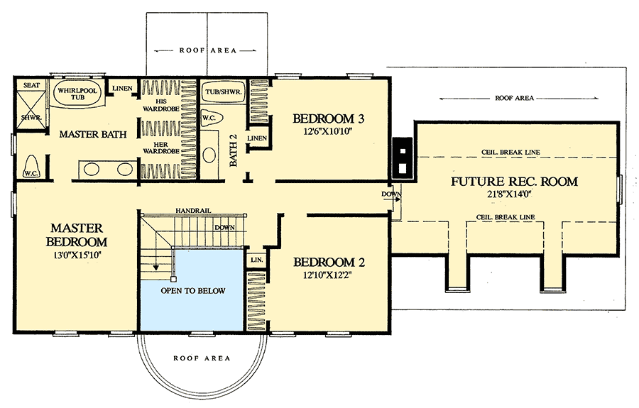
2nd Floor
1,005 sq. ft.
Bonus
366 sq. ft.
Bedrooms
3
Full bathrooms
2
Half bathrooms
1
Standard Foundations
Crawl
Exterior Walls
2x4
Width
65' 4"
Depth
40' 4"
Max Ridge Height
34' 5"
Type
Attached
Area
513 sq. ft.
Count
2 Cars
Entry Location
Side
First Floor
9'
Second Floor
8'
Framing Type
Stick
Total Heated Area
2,214 sq. ft.
1st Floor
1,209 sq. ft.
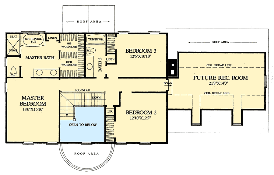
2nd Floor
1,005 sq. ft.
Bonus
366 sq. ft.
Bedrooms
3
Full bathrooms
2
Half bathrooms
1
Standard Foundations
Crawl
Exterior Walls
2x4
Width
65' 4"
Depth
40' 4"
Max Ridge Height
34' 5"
Type
Attached
Area
513 sq. ft.
Count
2 Cars
Entry Location
Side
First Floor
9'
Second Floor
8'
Framing Type
Stick