
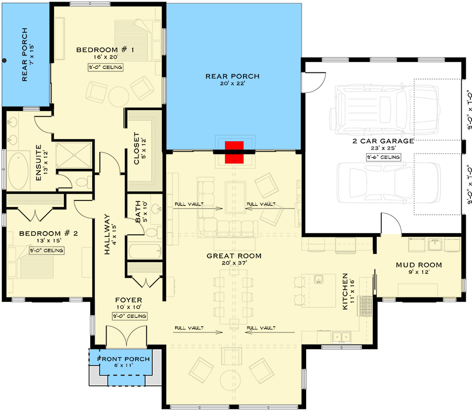
Total Heated Area
2,130 sq. ft.
1st Floor
2,130 sq. ft.
Deck & Porch
604 sq. ft.
Porch, Front
61 sq. ft.
Porch, Rear
543 sq. ft.
Porch, Combined
604 sq. ft.
Bedrooms
2
Full bathrooms
2
Standard Foundations
Slab
Exterior Walls
2x6
Width
68' 0"
Depth
59' 10"
Max Ridge Height
21' 9"
Type
Standard
Area
639 sq. ft.
Count
2 Cars
Entry Location
Side
First Floor
9'
Room
Ceiling Type
Height
Great Room
Vaulted
19' 6''
Primary Pitch
12 on 12
Secondary Pitch
4 on 12
Framing Type
Stick And Truss
Total Heated Area
2,130 sq. ft.
1st Floor
2,130 sq. ft.
Deck & Porch
604 sq. ft.
Porch, Front
61 sq. ft.
Porch, Rear
543 sq. ft.
Porch, Combined
604 sq. ft.
Bedrooms
2
Full bathrooms
2
Standard Foundations
Slab
Exterior Walls
2x6
Width
68' 0"
Depth
59' 10"
Max Ridge Height
21' 9"
Type
Standard
Area
639 sq. ft.
Count
2 Cars
Entry Location
Side
First Floor
9'
Room
Ceiling Type
Height
Great Room
Vaulted
19' 6''
Primary Pitch
12 on 12
Secondary Pitch
4 on 12
Framing Type
Stick And Truss