
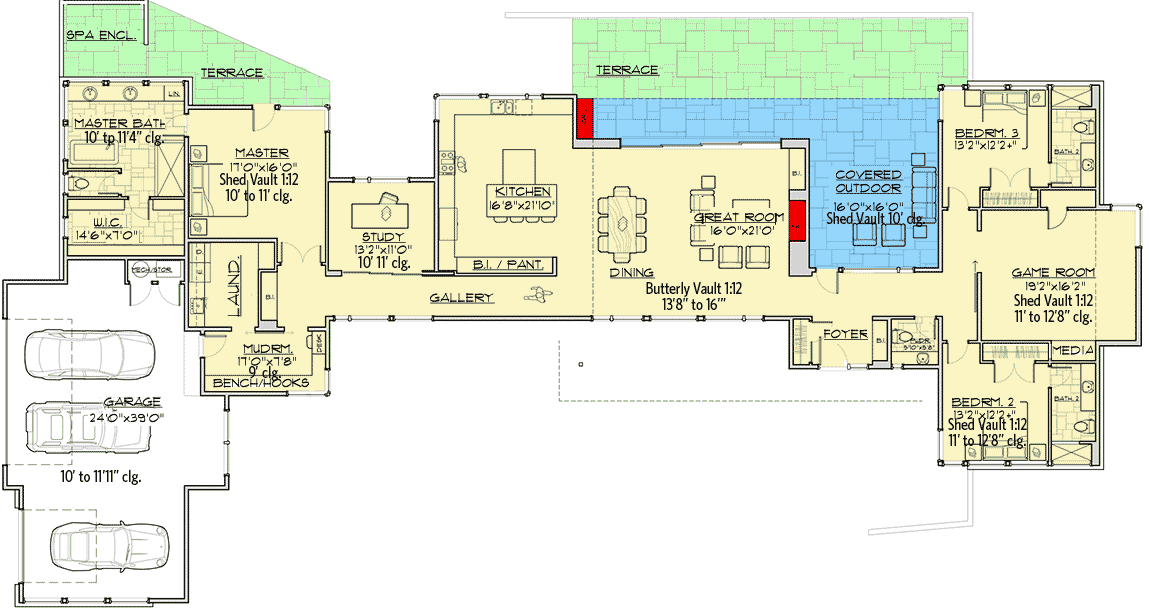
Total Heated Area
3,586 sq. ft.
1st Floor
3,586 sq. ft.
Bedrooms
3
Full bathrooms
3
Half bathrooms
1
Standard Foundations
Crawl
Exterior Walls
2x6
Width
141' 2"
Depth
65' 8"
Max Ridge Height
17' 2"
Type
Attached
Area
997 sq. ft.
Count
3 Cars
Entry Location
Side
First Floor
9' 1"
Primary Pitch
1 on 12
Framing Type
Truss
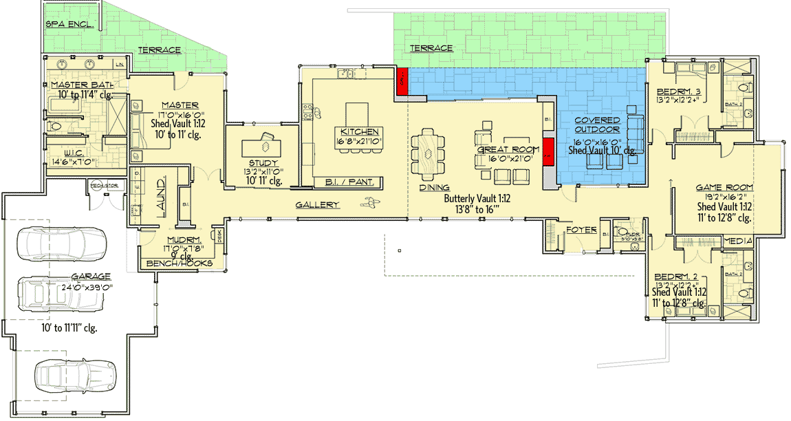
Total Heated Area
3,586 sq. ft.
1st Floor
3,586 sq. ft.
Bedrooms
3
Full bathrooms
3
Half bathrooms
1
Standard Foundations
Crawl
Exterior Walls
2x6
Width
141' 2"
Depth
65' 8"
Max Ridge Height
17' 2"
Type
Attached
Area
997 sq. ft.
Count
3 Cars
Entry Location
Side
First Floor
9' 1"
Primary Pitch
1 on 12
Framing Type
Truss