

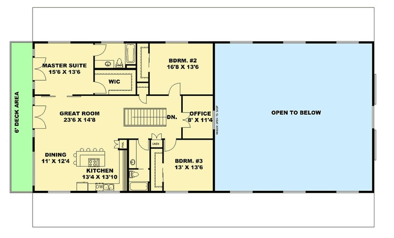
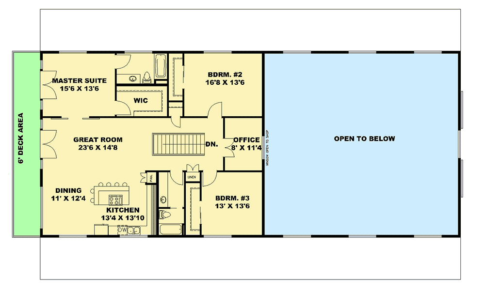
Total Heated Area
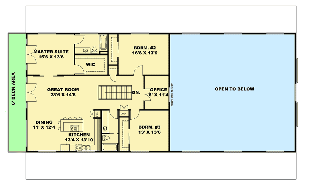
1,920 sq. ft.
1st Floor
1,920 sq. ft.
Bedrooms
3
Full bathrooms
3
Standard Foundations
Slab
Exterior Walls
2x6
Width
90' 0"
Depth
40' 0"
Max Ridge Height
32' 8"
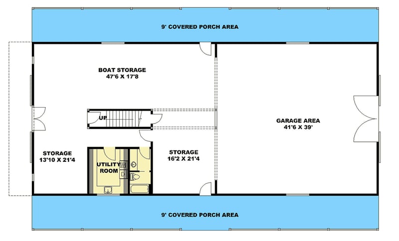
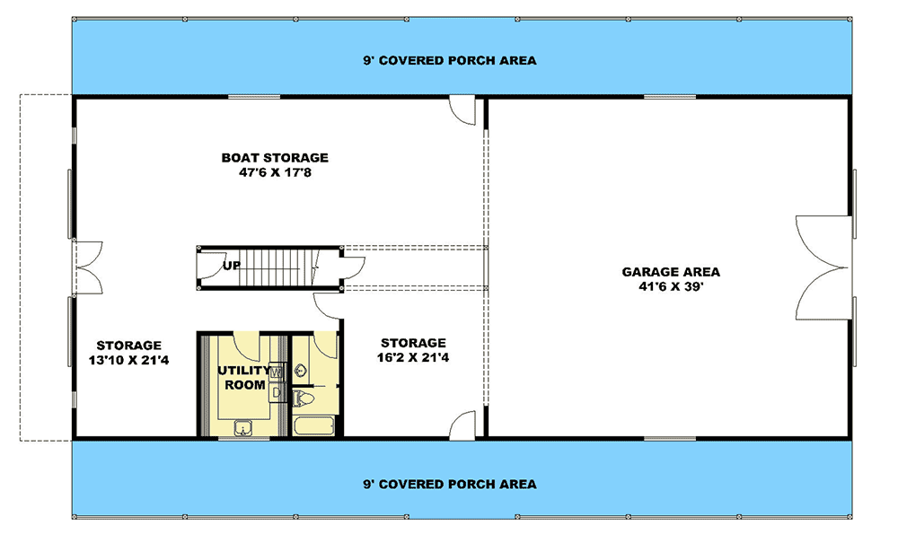
Type
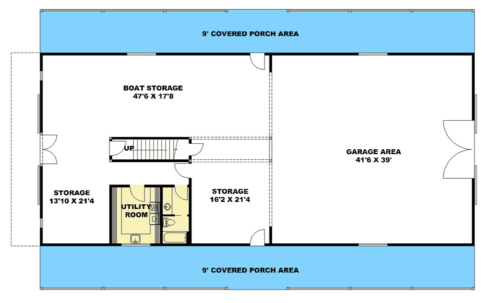
Drive Under, Attached
Area
3600 sq. ft.
Count
3 Cars
Entry Location
Front, Rear
First Floor
11'
Second Floor
8'
Primary Pitch
4 on 12
Secondary Pitch
12 on 12
Framing Type
Truss
Total Heated Area
1,920 sq. ft.
1st Floor
1,920 sq. ft.
Bedrooms
3
Full bathrooms
3
Standard Foundations
Slab
Exterior Walls
2x6
Width
90' 0"
Depth
40' 0"
Max Ridge Height
32' 8"
Type
Drive Under, Attached
Area
3600 sq. ft.
Count
3 Cars
Entry Location
Front, Rear
First Floor
11'
Second Floor
8'
Primary Pitch
4 on 12
Secondary Pitch
12 on 12
Framing Type
Truss