
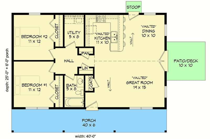
Total Heated Area
1,000 sq. ft.
1st Floor
1,000 sq. ft.
Porch, Combined
240 sq. ft.
Bedrooms
2
Full bathrooms
1
Standard Foundations
Slab
Exterior Walls
2x6
Width
40' 0"
Depth
31' 0"
Max Ridge Height
15' 0"
First Floor
8'
Primary Pitch
6 on 12
Framing Type
Stick
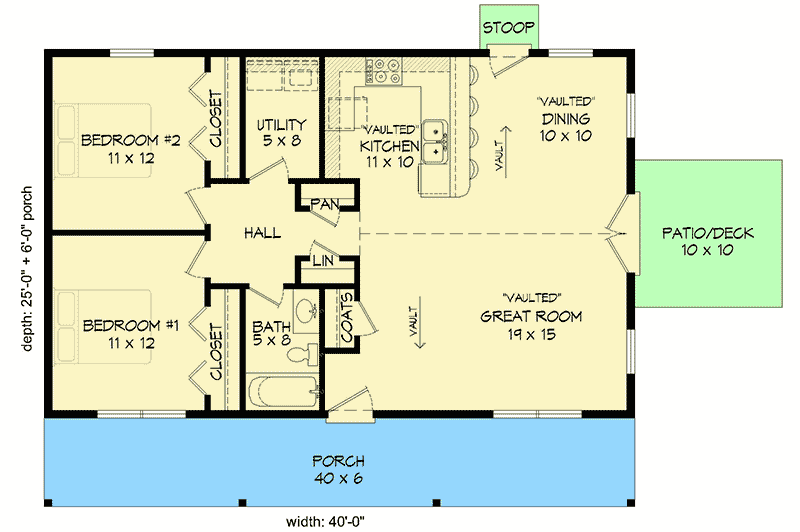
Total Heated Area
1,000 sq. ft.
1st Floor
1,000 sq. ft.
Porch, Combined
240 sq. ft.
Bedrooms
2
Full bathrooms
1
Standard Foundations
Slab
Exterior Walls
2x6
Width
40' 0"
Depth
31' 0"
Max Ridge Height
15' 0"
First Floor
8'
Primary Pitch
6 on 12
Framing Type
Stick