LogoLogo TaglineLogo Tagline
Loading...
Plan 61207UT

Traditional Home Plan Dynamic Layout

Heated S.F.
3,016
Beds
4 - 5
Baths
2.5 - 3.5
Stories
2
Cars
3

Floor Plan

Plan 61207UT

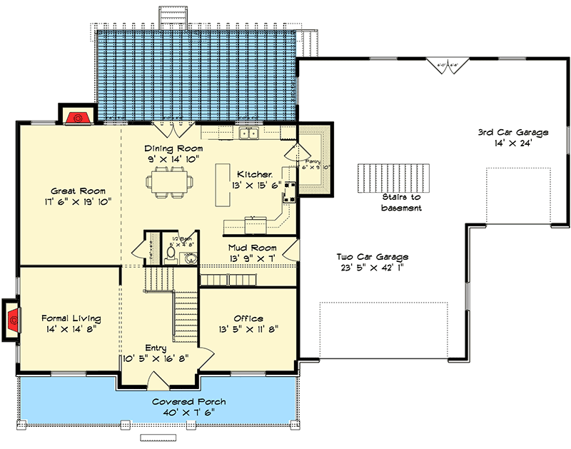
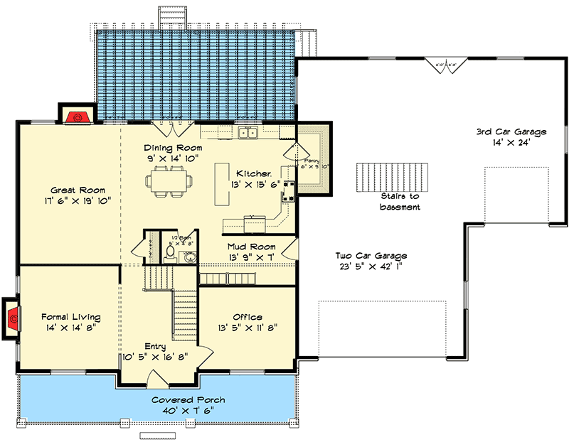
Main Level
Main Level
2nd Floor
2nd Floor
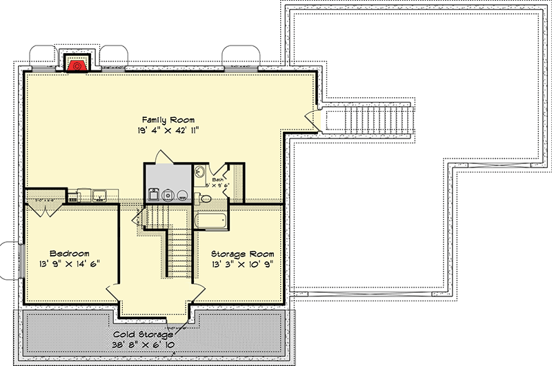
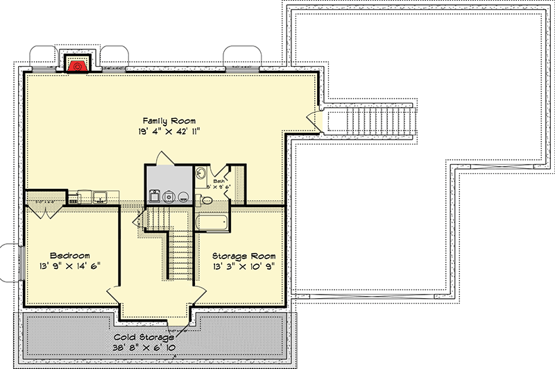
Basement
Basement

Plan 61207UT

M-F 9am-5pm EST |

1-203-761-8500

Main Level

Plan 61207UT: Traditional Home Plan Dynamic Layout - Floor Plan - Main Level - Country, Northwest, Traditional

2nd Floor

Plan 61207UT: Traditional Home Plan Dynamic Layout - Floor Plan - 2nd Floor - Country, Northwest, Traditional

Basement

Plan 61207UT: Traditional Home Plan Dynamic Layout - Floor Plan - Basement - Country, Northwest, Traditional

Plan Details

  • A hip roof and big covered front porch give some amazing curb appeal to this Traditional home plan.
  • Chose from a formal living room or large great room to relax in.
  • With its open floor plan, the dining room has wonderful views on either side.
  • Note the huge walk-in pantry off the kitchen.
  • A pergola-covered rear deck keeps the hot sun off.
  • On the second floor, the two front bedrooms share an unusual jack and jill closet.
  • The master suite has a romantic fireplace for those snowy nights.
  • A second floor laundry room adds convenience.
  • The unfinished basement comes with an optional bedroom, bathroom and huge family room.

What's Included

  • General notes
  • Foundation plan
  • Detailed floor plans
  • Floor framing
  • Roof framing
  • Elevations
  • Cross sections
  • Electrical plans
  • General details
View Sample Plan

What's Not Included

  • Architectural or Engineering Stamp - handled locally if required
  • Site Plan - handled locally when required
  • Mechanical Drawings (location of heating and air equipment and duct work) - your subcontractors handle this
  • Plumbing Drawings (drawings showing the actual plumbing pipe sizes and locations) - your subcontractors handle this
  • Energy calculations - handled locally when required

Starting at

Loading...
Price Match Guarantee
What's included?

FORMAT & LICENSE

Choose an option

$0

Not sure what to choose?

Pointer link icon

FOUNDATION

Choose an option

+$0

OPTIONS

Choose Additional Options

+$0

Loading...

Modify this Plan

Receive a free modification quote within 3 business days.

Loading...

Start with a Cost Report

Calculate the cost to build & furnish your home.

Loading...
Loading...

Square Footage Breakdown

Total Heated Area

3,016 sq. ft.

1st Floor

1,532 sq. ft.

2nd Floor

1,484 sq. ft.

Basement Unfinished

1,515 sq. ft.

Porch, Front

300 sq. ft.

Beds/Baths

Bedrooms

4 or 5

Full bathrooms

2 or 3

Half bathrooms

1

Foundation Type

Standard Foundations

Basement

Exterior Walls

Exterior Walls

2x6

Dimensions

Width

78' 0"

Depth

47' 0"

Max Ridge Height

31' 10"

Garage

Type

Attached

Count

3 Cars

Entry Location

Front

Ceiling Heights

First Floor

9'

Second Floor

8'

Roof Details

Primary Pitch

8 on 12

Framing Type

Truss

Architectural Style

Country

Plan Collections

Square Footage Breakdown

Total Heated Area

3,016 sq. ft.

1st Floor

1,532 sq. ft.

2nd Floor

1,484 sq. ft.

Basement Unfinished

1,515 sq. ft.

Porch, Front

300 sq. ft.

Beds/Baths

Bedrooms

4 or 5

Full bathrooms

2 or 3

Half bathrooms

1

Foundation Type

Standard Foundations

Basement

Exterior Walls

Exterior Walls

2x6

Dimensions

Width

78' 0"

Depth

47' 0"

Max Ridge Height

31' 10"

Garage

Type

Attached

Count

3 Cars

Entry Location

Front

Ceiling Heights

First Floor

9'

Second Floor

8'

Roof Details

Primary Pitch

8 on 12

Framing Type

Truss

Architectural Style

Plan Collections

* Please note that all sale prices and promotions featured on our website are subject to change without prior notice. While we strive to provide accurate and up-to-date information, occasional discrepancies may occur due to factors beyond our control. We encourage you to verify all details, including pricing and availability, before making any purchase. Exclusions or restrictions may apply to specific promotions. We reserve the right to modify or cancel any sale at our discretion. Thank you for your understanding and happy shopping!Let's go back to the top.