

Total Heated Area
1,614 sq. ft.
2nd Floor
1,614 sq. ft.
Deck
113 sq. ft.
Bedrooms
3
Full bathrooms
2
Standard Foundations
Slab
Exterior Walls
2x6
Width
40' 0"
Depth
46' 0"
Max Ridge Height
27' 4"
Type
Detached
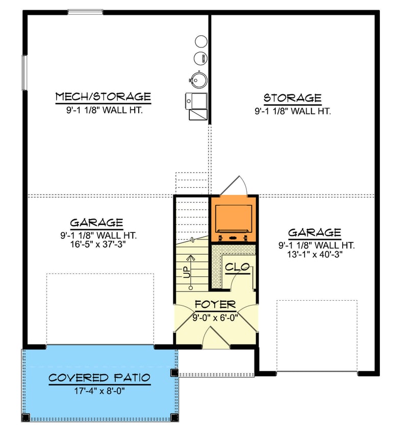
Area
1579 sq. ft.
Count
2 Cars
Entry Location
Front
First Floor
9'
Second Floor
9'
Primary Pitch
6 on 12
Secondary Pitch
9 on 12
Total Heated Area
1,614 sq. ft.
2nd Floor
1,614 sq. ft.
Deck
113 sq. ft.
Bedrooms
3
Full bathrooms
2
Standard Foundations
Slab
Exterior Walls
2x6
Width
40' 0"
Depth
46' 0"
Max Ridge Height
27' 4"
Type
Detached
Area
1579 sq. ft.
Count
2 Cars
Entry Location
Front
First Floor
9'
Second Floor
9'
Primary Pitch
6 on 12
Secondary Pitch
9 on 12