

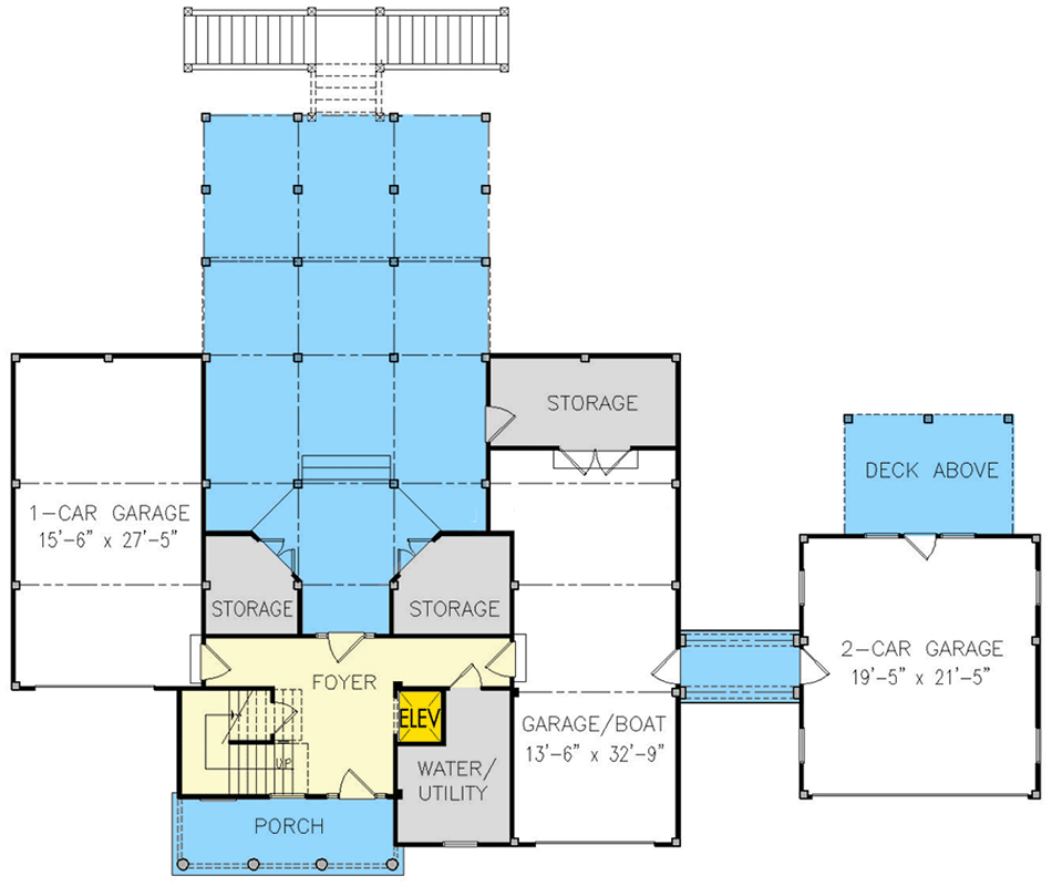
Total Heated Area
2,389 sq. ft.
1st Floor
272 sq. ft.
2nd Floor
2,117 sq. ft.
Bedrooms
4
Full bathrooms
3
Standard Foundations
Slab
Exterior Walls
2x4
Optional Type(s)
2x6
Width
85' 0"
Depth
63' 0"
Max Ridge Height
28' 0"
Type
Drive Under
Area
1362 sq. ft.
Count
4 Cars
Entry Location
Front
First Floor
10'
Second Floor
9'
Total Heated Area
2,389 sq. ft.
1st Floor
272 sq. ft.
2nd Floor
2,117 sq. ft.
Bedrooms
4
Full bathrooms
3
Standard Foundations
Slab
Exterior Walls
2x4
Optional Type(s)
2x6
Width
85' 0"
Depth
63' 0"
Max Ridge Height
28' 0"
Type
Drive Under
Area
1362 sq. ft.
Count
4 Cars
Entry Location
Front
First Floor
10'
Second Floor
9'