Exclusive


Total Heated Area
4,527 sq. ft.
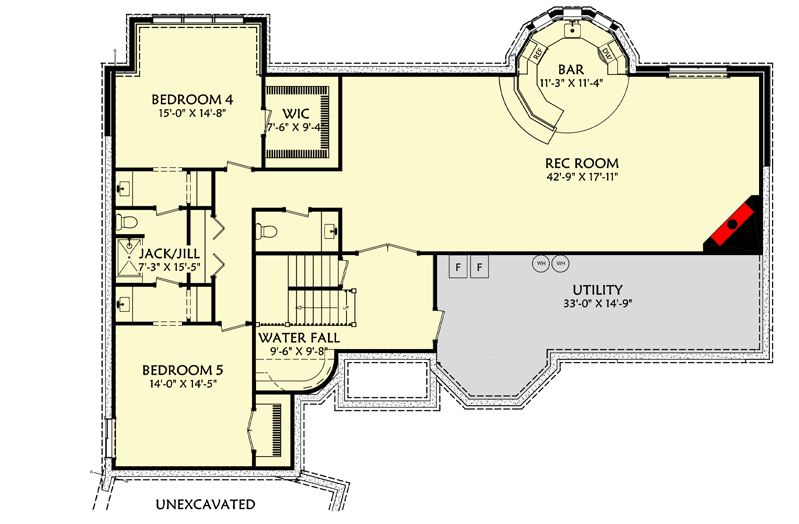
Lower Level
1,980 sq. ft.
1st Floor
2,547 sq. ft.
Basement Unfinished
366 sq. ft.
Storage
300 sq. ft.
Bedrooms
4 or 5
Full bathrooms
3
Half bathrooms
2
Standard Foundations
Daylight
Exterior Walls
2x6
Width
79' 6"
Depth
105' 2"
Max Ridge Height
22' 2"
Type
Attached
Count
3 Cars
Entry Location
Front, Side
Lower Level
8' 8"
First Floor
9'
Primary Pitch
12 on 8
Framing Type
Truss
Total Heated Area
4,527 sq. ft.
Lower Level
1,980 sq. ft.
1st Floor
2,547 sq. ft.
Basement Unfinished
366 sq. ft.
Storage
300 sq. ft.
Bedrooms
4 or 5
Full bathrooms
3
Half bathrooms
2
Standard Foundations
Daylight
Exterior Walls
2x6
Width
79' 6"
Depth
105' 2"
Max Ridge Height
22' 2"
Type
Attached
Count
3 Cars
Entry Location
Front, Side
Lower Level
8' 8"
First Floor
9'
Primary Pitch
12 on 8
Framing Type
Truss