LogoLogo TaglineLogo Tagline
Loading...
Plan 135345GRA

Two-Story Barndominium House Plan with Wrap Around Porch and Finished Apartment - 3395 Sq Ft

Heated S.F.
3,395
Beds
4
Baths
3.5
Stories
2
Cars
3

Floor Plan

Plan 135345GRA

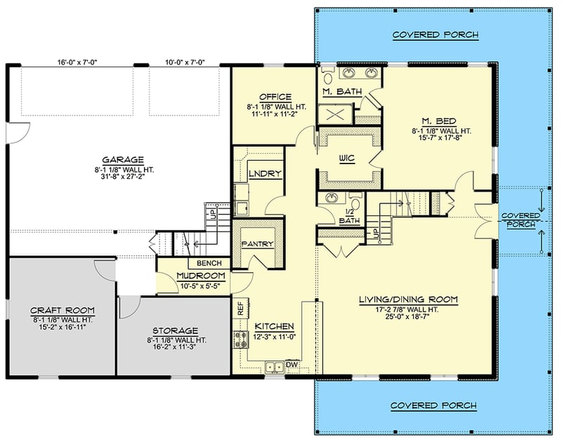
Main Level
Main Level
2nd Floor
2nd Floor

Plan 135345GRA

M-F 9am-5pm EST |

1-203-761-8500

Main Level

Plan 135345GRA: Two-Story Barndominium House Plan with Wrap Around Porch and Finished Apartment - 3395 Sq Ft - Floor Plan - Main Level - Barndominium

2nd Floor

Plan 135345GRA: Two-Story Barndominium House Plan with Wrap Around Porch and Finished Apartment - 3395 Sq Ft - Floor Plan - 2nd Floor - Barndominium

Plan Details

  • This grand 3,395 sq. ft. Barndominium House Plan features 4 bedrooms, 3.5 bathrooms, and an impressive 1,440 sq. ft. three-car attached garage, all wrapped in a timeless modern farmhouse aesthetic.
  • Step inside to discover an inviting mudroom with a convenient bench, leading into an expansive, open-concept living and dining area designed for seamless flow and connection. A dedicated home office near the entry provides a quiet space for productivity.
  • The heart of the home, the gourmet kitchen, is thoughtfully designed with a walk-in pantry and an additional butler's pantry, ensuring ample storage and effortless entertaining. This space flows directly into the two-story great room, creating an airy and bright atmosphere perfect for gatherings.
  • The luxurious first-floor master suite offers a private sanctuary, complete with a spa-like master bath and a generous walk-in closet. Upstairs, three additional well-appointed bedrooms share a full bathroom, providing comfortable accommodations for family or guests, alongside a versatile loft space.
  • Beyond the main living areas, a dedicated craft room and spacious storage room adjacent to the garage offer practical spaces for hobbies and organization. The second floor also features a versatile loft, perfect for a reading nook or media area.
  • Embrace outdoor living with a magnificent 900 sq. ft. wrap-around covered porch, providing ample space for morning coffee, evening relaxation, or al fresco dining, connecting seamlessly with the surrounding landscape.
  • An exceptional feature of this plan is the self-contained 571 sq. ft. attached apartment on the second floor, complete with its own living area, bedroom, and bath, offering ideal accommodations for extended family, guests, or potential rental income. Additionally, an 887 sq. ft. unfinished attic space presents future possibilities for expansion or storage.

What's Included

  • Elevations
  • Fully Dimensioned Floor Plans
  • Roof Plan & Sections
  • Foundation plan
  • General Notes
  • Suggested Electrical Layout
View Sample Plan

What's Not Included

  • Architectural or Engineering Stamp - handled locally if required
  • Site Plan - handled locally when required
  • Mechanical Drawings (location of heating and air equipment and duct work) - your subcontractors handle this
  • Plumbing Drawings (drawings showing the actual plumbing pipe sizes and locations) - your subcontractors handle this
  • Energy calculations - handled locally when required

Starting at

Loading...
Price Match Guarantee
What's included?

FORMAT & LICENSE

Choose an option

$0

Not sure what to choose?

Pointer link icon

FOUNDATION

Choose an option

+$0

OPTIONS

Choose Additional Options

+$0

Loading...

Modify this Plan

Receive a free modification quote within 3 business days.

Loading...

Start with a Cost Report

Calculate the cost to build & furnish your home.

Loading...
Loading...

Square Footage Breakdown

Total Heated Area

3,395 sq. ft.

1st Floor

1,710 sq. ft.

2nd Floor

1,114 sq. ft.

Apartment

571 sq. ft.

Porch, Combined

900 sq. ft.

Attic

887 sq. ft.

Beds/Baths

Bedrooms

4

Full bathrooms

3

Half bathrooms

1

Foundation Type

Standard Foundations

Slab

Exterior Walls

Exterior Walls

2x4

Optional Type(s)

2x6

Dimensions

Width

78' 0"

Depth

61' 0"

Max Ridge Height

27' 5"

Garage

Type

Attached

Area

1440 sq. ft.

Count

3 Cars

Entry Location

Front

Ceiling Heights

First Floor

8'

Second Floor

8'

Roof Details

Primary Pitch

5 on 12

Secondary Pitch

9 on 12

Framing Type

Truss

Architectural Style

Barndominium

Plan Collections

Square Footage Breakdown

Total Heated Area

3,395 sq. ft.

1st Floor

1,710 sq. ft.

2nd Floor

1,114 sq. ft.

Apartment

571 sq. ft.

Porch, Combined

900 sq. ft.

Attic

887 sq. ft.

Beds/Baths

Bedrooms

4

Full bathrooms

3

Half bathrooms

1

Foundation Type

Standard Foundations

Slab

Exterior Walls

Exterior Walls

2x4

Optional Type(s)

2x6

Dimensions

Width

78' 0"

Depth

61' 0"

Max Ridge Height

27' 5"

Garage

Type

Attached

Area

1440 sq. ft.

Count

3 Cars

Entry Location

Front

Ceiling Heights

First Floor

8'

Second Floor

8'

Roof Details

Primary Pitch

5 on 12

Secondary Pitch

9 on 12

Framing Type

Truss

Architectural Style

Plan Collections

* Please note that all sale prices and promotions featured on our website are subject to change without prior notice. While we strive to provide accurate and up-to-date information, occasional discrepancies may occur due to factors beyond our control. We encourage you to verify all details, including pricing and availability, before making any purchase. Exclusions or restrictions may apply to specific promotions. We reserve the right to modify or cancel any sale at our discretion. Thank you for your understanding and happy shopping!Let's go back to the top.