

Total Heated Area
1,214 sq. ft.
1st Floor
772 sq. ft.
2nd Floor
442 sq. ft.
Bedrooms
3
Full bathrooms
2
Standard Foundations
Basement
Exterior Walls
2x6
Width
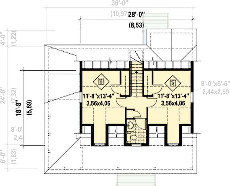
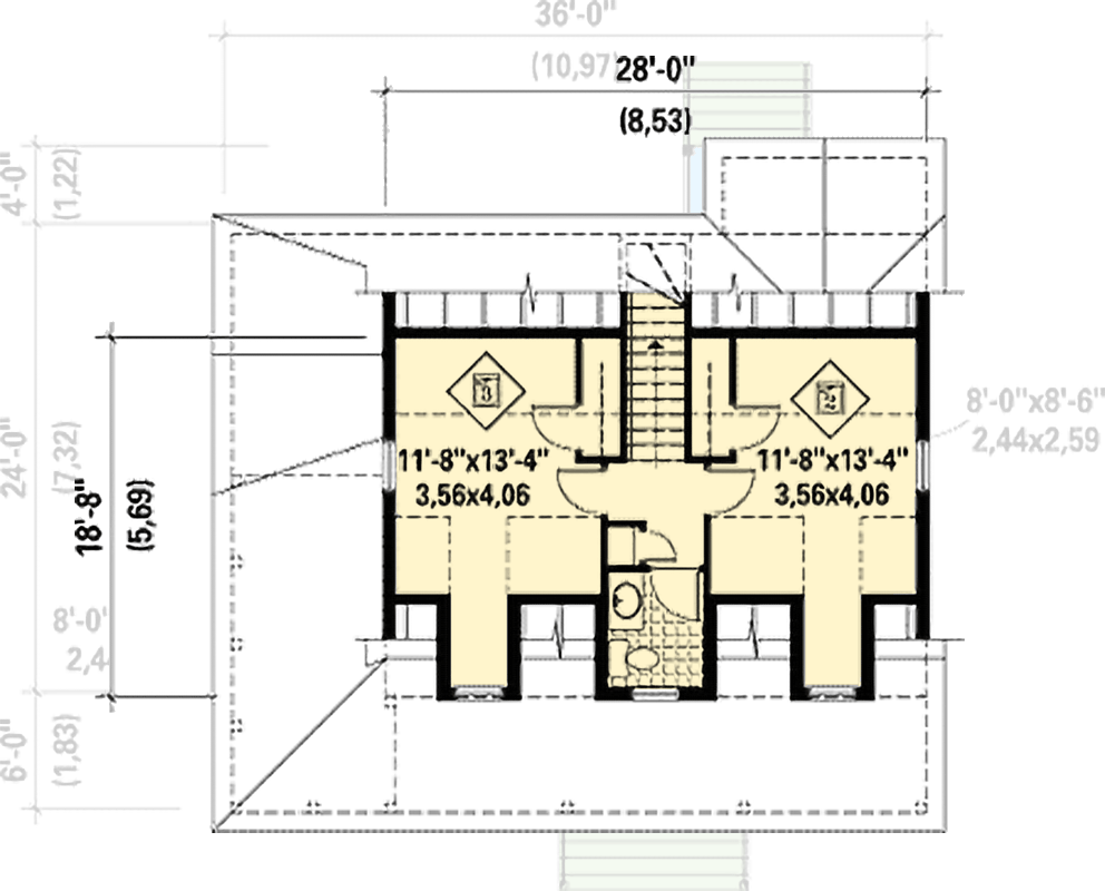
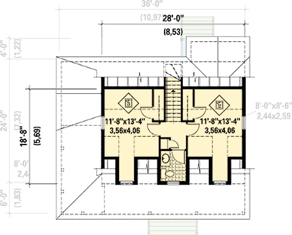
36' 0"
Depth
24' 0"
Max Ridge Height
26' 0"
First Floor
8'
Primary Pitch
12 on 12
Framing Type
Truss
Total Heated Area
1,214 sq. ft.
1st Floor
772 sq. ft.
2nd Floor
442 sq. ft.
Bedrooms
3
Full bathrooms
2
Standard Foundations
Basement
Exterior Walls
2x6
Width
36' 0"
Depth
24' 0"
Max Ridge Height
26' 0"
First Floor
8'
Primary Pitch
12 on 12
Framing Type
Truss