

Total Heated Area
1,761 sq. ft.
1st Floor
1,256 sq. ft.
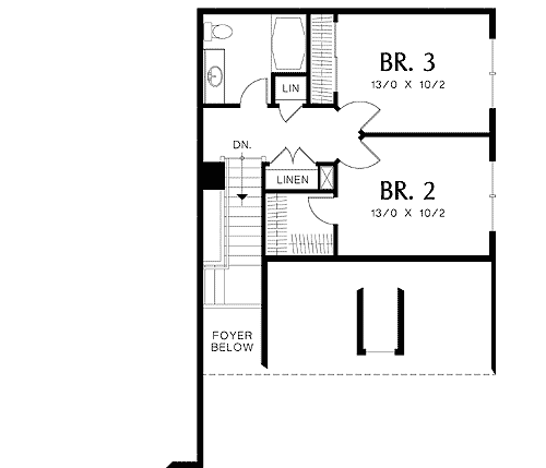
2nd Floor
505 sq. ft.
Bedrooms
3
Full bathrooms
2
Half bathrooms
1
Standard Foundations
Crawl, Slab
Exterior Walls
2x6
Width
40' 0"
Depth
50' 0"
Max Ridge Height
27' 10"
Type
Attached
Area
429 sq. ft.
Count
2 Cars
Entry Location
Front
First Floor
9'
Framing Type
Truss
Total Heated Area
1,761 sq. ft.
1st Floor
1,256 sq. ft.
2nd Floor
505 sq. ft.
Bedrooms
3
Full bathrooms
2
Half bathrooms
1
Standard Foundations
Crawl, Slab
Exterior Walls
2x6
Width
40' 0"
Depth
50' 0"
Max Ridge Height
27' 10"
Type
Attached
Area
429 sq. ft.
Count
2 Cars
Entry Location
Front
First Floor
9'
Framing Type
Truss