LogoLogo TaglineLogo Tagline
Loading...
Plan 818174JSS

Two-Story Craftsman Mountain House Plan with Wrap Around Porch

Heated S.F.
2,116
Beds
3 - 4
Baths
2.5
Stories
2
Cars
2

Floor Plan

Plan 818174JSS

Main Level
Main Level
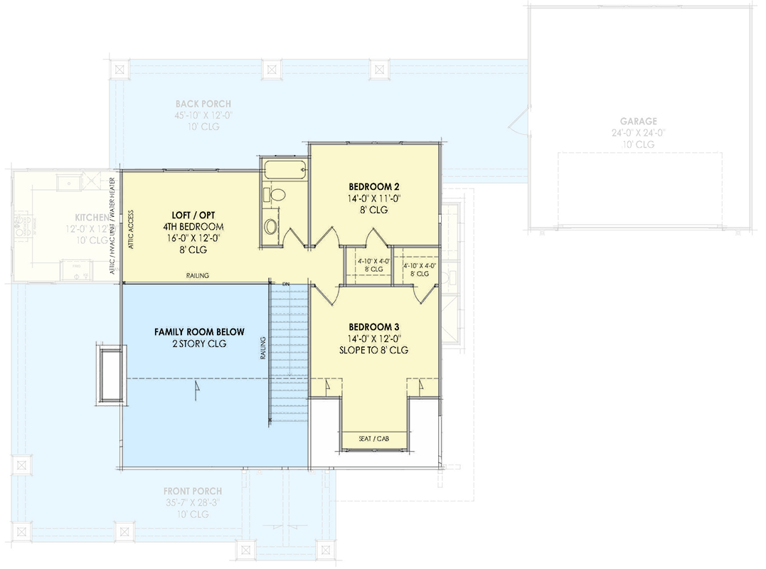
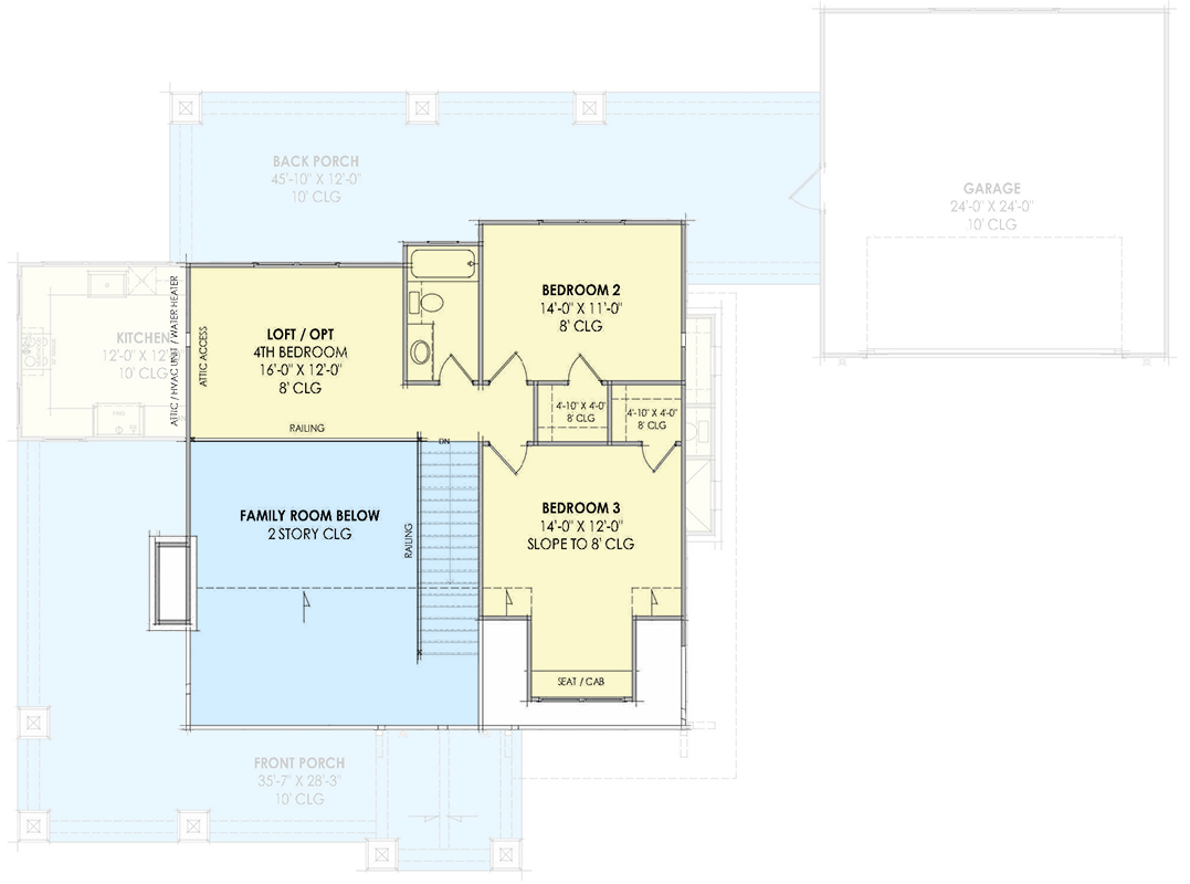
2nd Floor
2nd Floor

Plan 818174JSS

M-F 9am-5pm EST |

1-203-761-8500

Main Level

Plan 818174JSS: Two-Story Craftsman Mountain House Plan with Wrap Around Porch - Floor Plan - Main Level - Cabin, Craftsman, Mountain

2nd Floor

Plan 818174JSS: Two-Story Craftsman Mountain House Plan with Wrap Around Porch - Floor Plan - 2nd Floor - Cabin, Craftsman, Mountain

Plan Details

  • Immerse yourself in 2,116 sq. ft. of living space featuring 3 or 4 bedrooms and 2.5 bathrooms. This Craftsman-style home includes a 604 sq. ft. attached garage with space for two cars.
  • Enter through a welcoming foyer that opens to a magnificent two-story great room, creating an expansive and airy feel. The main level also houses a convenient laundry room and a split bedroom layout for added privacy.
  • The main living areas boast seamless flow. The kitchen connects effortlessly with the dining area, perfect for family meals or gatherings. The great room's double-height ceiling enhances the openness.
  • Retreat to the primary suite on the first floor, offering privacy and convenience, with neighboring bedrooms upstairs. The second floor includes a spacious loft that can serve as a fourth bedroom if needed.
  • Enjoy morning coffee or evening relaxation on the expansive wrap-around porch, offering over 1,000 sq. ft. of outdoor enjoyment space with picturesque views.

What's Included

  • Foundation plan
  • Detailed floorplans
  • Roof plan
  • Exterior elevations
  • Electrical schematic
  • Cross section(s)
View Sample Plan

What's Not Included

  • Architectural or Engineering Stamp - handled locally if required
  • Framing
  • Site Plan - handled locally when required
  • Mechanical Drawings (location of heating and air equipment and duct work) - your subcontractors handle this
  • Plumbing Drawings (drawings showing the actual plumbing pipe sizes and locations) - your subcontractors handle this
  • Energy calculations - handled locally when required
Starting at
Loading...
What's included?
Plan Set
Select...

Foundation
Select...

Options
Optional Add-Ons
+$0

Loading...
Price Match Guarantee
Cost to Build Report
Still deciding? Calculate the cost to build this house in your area.
Loading...
Customize This Plan
Need to make changes? We will get you a free price quote within 1 to 3 business days.
Cost to Furnish Report
Instant room-by-room estimates for your entire furniture & home decor plan, matched to your budget.
Loading...

Square Footage Breakdown

Total Heated Area

2,116 sq. ft.

1st Floor

1,394 sq. ft.

2nd Floor

721 sq. ft.

Porch, Front

538 sq. ft.

Porch, Rear

521 sq. ft.

Porch, Combined

1,059 sq. ft.

Beds/Baths

Bedrooms

3 or 4

Full bathrooms

2

Half bathrooms

1

Foundation Type

Standard Foundations

Monolithic Slab

Exterior Walls

Exterior Walls

2x4

Optional Type(s)

2x6

Dimensions

Width

81' 2"

Depth

60' 5"

Max Ridge Height

27' 3"

Garage

Type

Attached, Standard

Area

604 sq. ft.

Count

2 Cars

Entry Location

Front

Ceiling Heights

First Floor

10'

Second Floor

8'

Roof Details

Primary Pitch

12 on 12

Secondary Pitch

8 on 12

Framing Type

Stick

Architectural Style

Cabin

Square Footage Breakdown

Total Heated Area

2,116 sq. ft.

1st Floor

1,394 sq. ft.

2nd Floor

721 sq. ft.

Porch, Front

538 sq. ft.

Porch, Rear

521 sq. ft.

Porch, Combined

1,059 sq. ft.

Beds/Baths

Bedrooms

3 or 4

Full bathrooms

2

Half bathrooms

1

Foundation Type

Standard Foundations

Monolithic Slab

Exterior Walls

Exterior Walls

2x4

Optional Type(s)

2x6

Dimensions

Width

81' 2"

Depth

60' 5"

Max Ridge Height

27' 3"

Garage

Type

Attached, Standard

Area

604 sq. ft.

Count

2 Cars

Entry Location

Front

Ceiling Heights

First Floor

10'

Second Floor

8'

Roof Details

Primary Pitch

12 on 12

Secondary Pitch

8 on 12

Framing Type

Stick

Architectural Style

* Please note that all sale prices and promotions featured on our website are subject to change without prior notice. While we strive to provide accurate and up-to-date information, occasional discrepancies may occur due to factors beyond our control. We encourage you to verify all details, including pricing and availability, before making any purchase. Exclusions or restrictions may apply to specific promotions. We reserve the right to modify or cancel any sale at our discretion. Thank you for your understanding and happy shopping!Let's go back to the top.