LogoLogo TaglineLogo Tagline
Loading...
Plan 135377GRA

Two-Story Craftsman with RV Garage and Home Office

Heated S.F.
1,657
Beds
2
Baths
1.5
Stories
2
Cars
2

Floor Plan

Plan 135377GRA

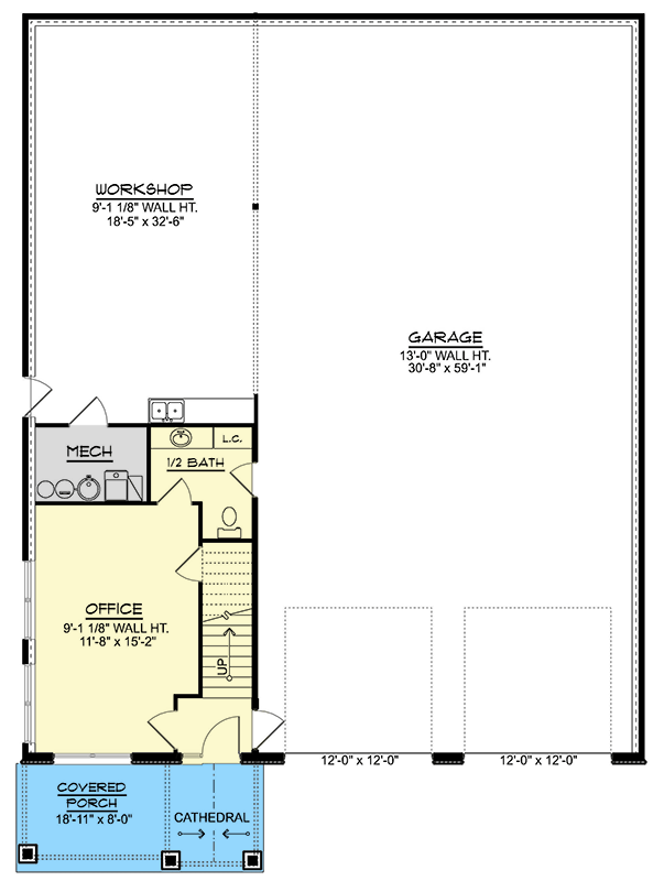
Main Level
Main Level
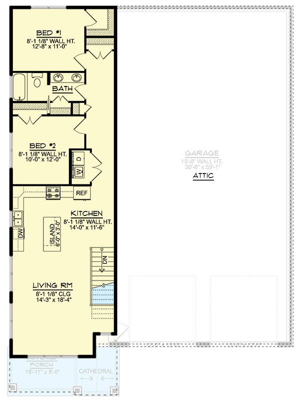
2nd Floor
2nd Floor

Plan 135377GRA

M-F 9am-5pm EST |

1-203-761-8500

Main Level

Plan 135377GRA: Two-Story  Craftsman with RV Garage and Home Office - Floor Plan - Main Level - Craftsman, New American

2nd Floor

Plan 135377GRA: Two-Story  Craftsman with RV Garage and Home Office - Floor Plan - 2nd Floor - Craftsman, New American

Plan Details

  • This Craftsman-style home offers 1,657 sq. ft. of heated space, featuring 2 bedrooms, 1.5 baths, and an expansive 2-car RV garage spanning 2,495 sq. ft.
  • The inviting entry opens to a versatile home office on the main floor, leading to an open living space, perfect for both work and relaxation.
  • Upstairs, an open-concept kitchen and living area create a seamless flow, ideal for everyday living and gatherings.
  • The upper floor hosts the master suite, along with a secondary bedroom, both conveniently located near the bathroom and laundry room.
  • Additional features include a workshop perfect for hobbies or storage, enhancing the home's functional appeal.
  • Enjoy outdoor living with a cozy covered porch, great for morning coffee or evening relaxation.

What's Included

  • Elevations
  • Fully Dimensioned Floor Plans
  • Roof Plan & Sections
  • Foundation plan
  • General Notes
  • Suggested Electrical Layout
View Sample Plan

What's Not Included

  • Architectural or Engineering Stamp - handled locally if required
  • Site Plan - handled locally when required
  • Mechanical Drawings (location of heating and air equipment and duct work) - your subcontractors handle this
  • Plumbing Drawings (drawings showing the actual plumbing pipe sizes and locations) - your subcontractors handle this
  • Energy calculations - handled locally when required

Starting at

Loading...
Price Match Guarantee
What's included?

FORMAT & LICENSE

Choose an option

$0

Not sure what to choose?

Pointer link icon

FOUNDATION

Choose an option

+$0

OPTIONS

Choose Additional Options

+$0

Loading...

Modify this Plan

Receive a free modification quote within 3 business days.

Loading...

Start with a Cost Report

Calculate the cost to build & furnish your home.

Loading...
Loading...

Square Footage Breakdown

Total Heated Area

1,657 sq. ft.

1st Floor

499 sq. ft.

2nd Floor

1,158 sq. ft.

Porch, Front

180 sq. ft.

Beds/Baths

Bedrooms

2

Full bathrooms

1

Half bathrooms

1

Foundation Type

Standard Foundations

Slab

Exterior Walls

Exterior Walls

2x6

Dimensions

Width

50' 0"

Depth

68' 6"

Max Ridge Height

24' 3"

Garage

Type

Standard, Attached, RV Garage

Area

2495 sq. ft.

Count

2 Cars

Entry Location

Front

Ceiling Heights

First Floor

9'

Second Floor

8'

Roof Details

Primary Pitch

7 on 12

Secondary Pitch

4 on 12

Framing Type

Truss

Architectural Style

Craftsman

Square Footage Breakdown

Total Heated Area

1,657 sq. ft.

1st Floor

499 sq. ft.

2nd Floor

1,158 sq. ft.

Porch, Front

180 sq. ft.

Beds/Baths

Bedrooms

2

Full bathrooms

1

Half bathrooms

1

Foundation Type

Standard Foundations

Slab

Exterior Walls

Exterior Walls

2x6

Dimensions

Width

50' 0"

Depth

68' 6"

Max Ridge Height

24' 3"

Garage

Type

Standard, Attached, RV Garage

Area

2495 sq. ft.

Count

2 Cars

Entry Location

Front

Ceiling Heights

First Floor

9'

Second Floor

8'

Roof Details

Primary Pitch

7 on 12

Secondary Pitch

4 on 12

Framing Type

Truss

Architectural Style

* Please note that all sale prices and promotions featured on our website are subject to change without prior notice. While we strive to provide accurate and up-to-date information, occasional discrepancies may occur due to factors beyond our control. We encourage you to verify all details, including pricing and availability, before making any purchase. Exclusions or restrictions may apply to specific promotions. We reserve the right to modify or cancel any sale at our discretion. Thank you for your understanding and happy shopping!Let's go back to the top.