


Total Heated Area
5,469 sq. ft.
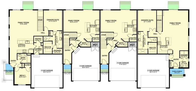
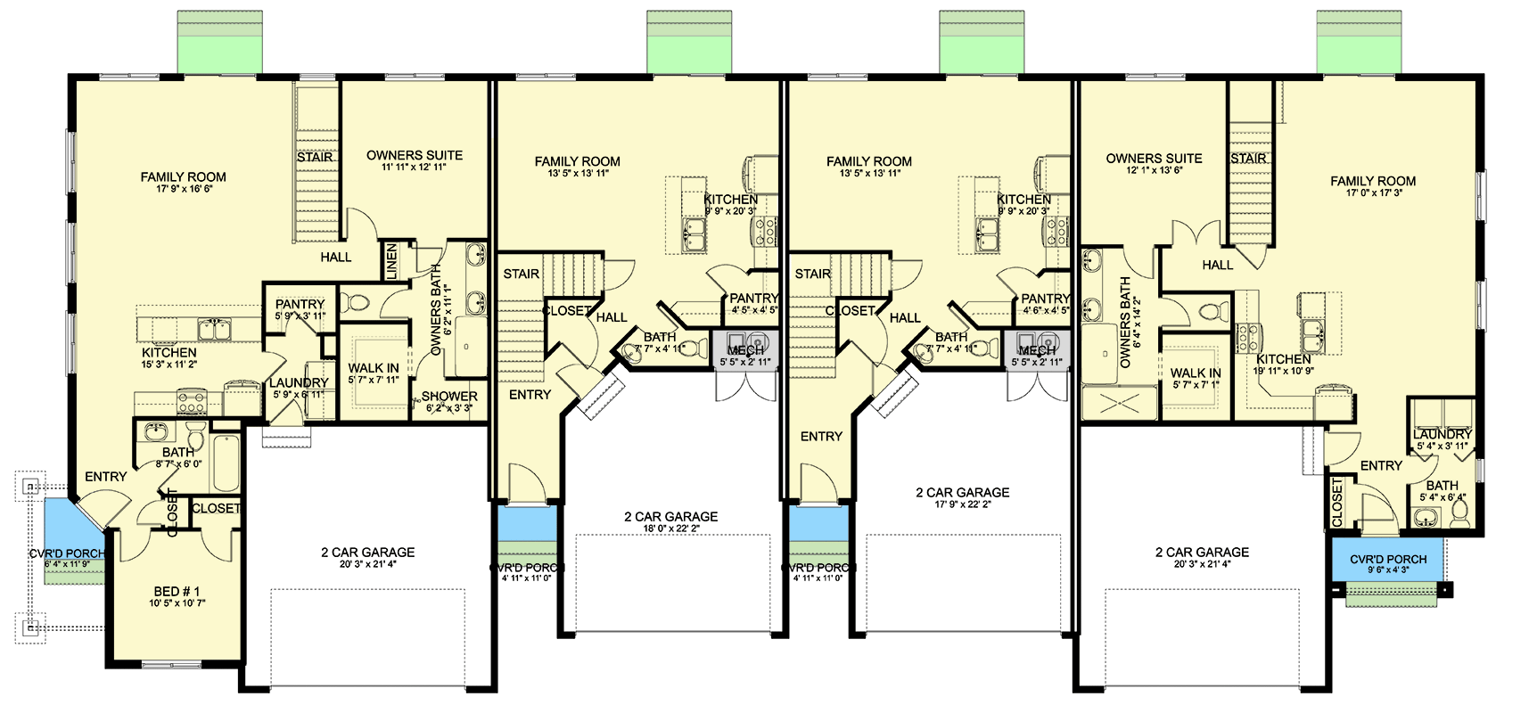
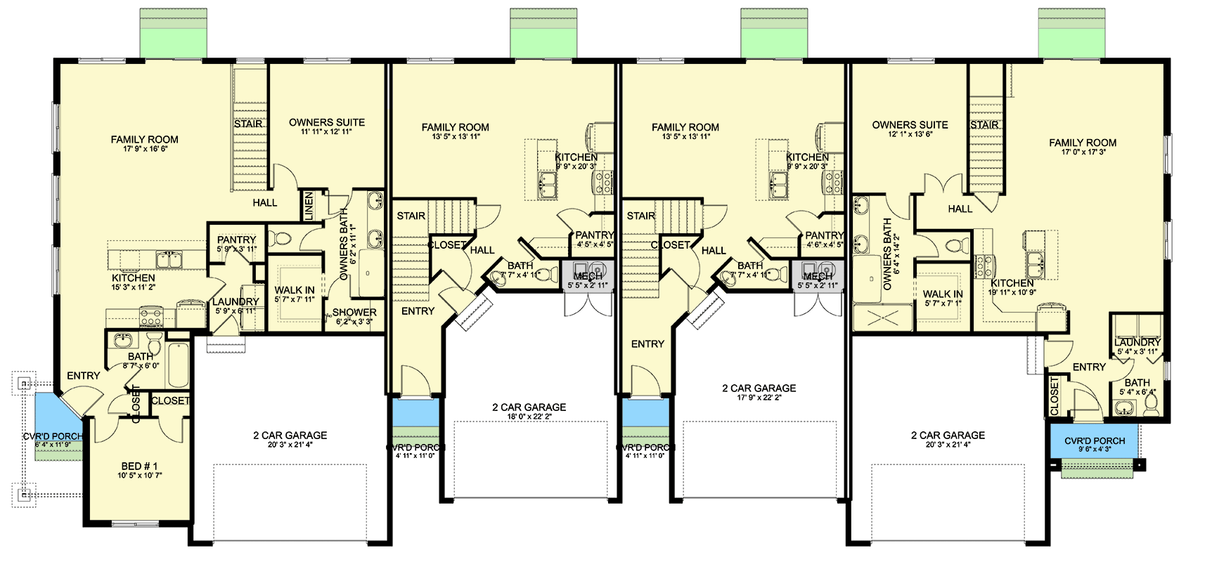
1st Floor
3,677 sq. ft.
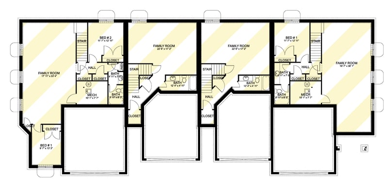
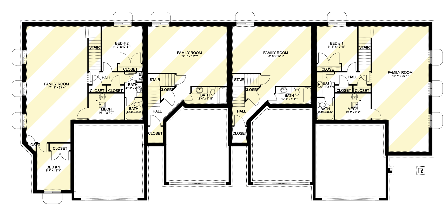
2nd Floor
1,792 sq. ft.
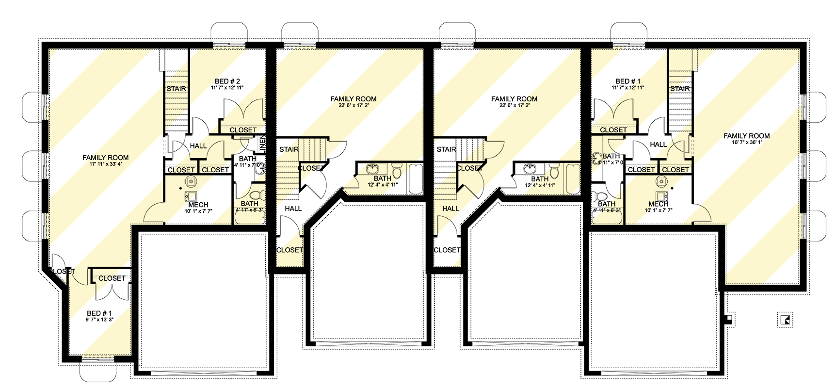
Optional Lower Level
3,704 sq. ft.
Porch, Front
298 sq. ft.
Bedrooms
9 or 10
Full bathrooms
7
Half bathrooms
3
Standard Foundations
Basement
Exterior Walls
2x6
Width
117' 0"
Depth
51' 0"
Max Ridge Height
34' 3"
Type
Attached
Area
1716 sq. ft.
Count
8 Cars
Entry Location
Front
Lower Level
8'
First Floor
9'
Second Floor
8'
Primary Pitch
8 on 12
Secondary Pitch
7 on 12
Framing Type
Truss
Total Heated Area
5,469 sq. ft.
1st Floor
3,677 sq. ft.
2nd Floor
1,792 sq. ft.
Optional Lower Level
3,704 sq. ft.
Porch, Front
298 sq. ft.
Bedrooms
9 or 10
Full bathrooms
7
Half bathrooms
3
Standard Foundations
Basement
Exterior Walls
2x6
Width
117' 0"
Depth
51' 0"
Max Ridge Height
34' 3"
Type
Attached
Area
1716 sq. ft.
Count
8 Cars
Entry Location
Front
Lower Level
8'
First Floor
9'
Second Floor
8'
Primary Pitch
8 on 12
Secondary Pitch
7 on 12
Framing Type
Truss