

Total Heated Area
3,696 sq. ft.
1st Floor
1,847 sq. ft.
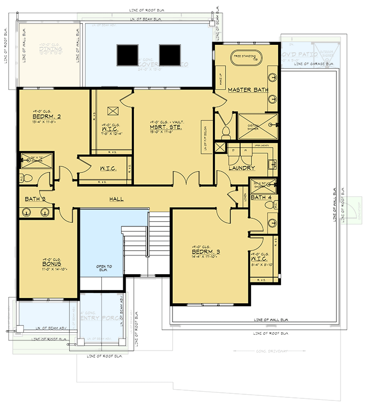
2nd Floor
1,839 sq. ft.
Porch, Front
213 sq. ft.
Covered Patio
316 sq. ft.
Bedrooms
3
Full bathrooms
4
Half bathrooms
1
Standard Foundations
Crawl
Exterior Walls
2x6
Width
61' 0"
Depth
53' 0"
Max Ridge Height
29' 4"
Type
Attached
Area
1000 sq. ft.
Count
3 Cars
Entry Location
Front
First Floor
10'
Second Floor
9'
Primary Pitch
5 on 12
Secondary Pitch
8 on 12
Framing Type
Truss
Total Heated Area
3,696 sq. ft.
1st Floor
1,847 sq. ft.
2nd Floor
1,839 sq. ft.
Porch, Front
213 sq. ft.
Covered Patio
316 sq. ft.
Bedrooms
3
Full bathrooms
4
Half bathrooms
1
Standard Foundations
Crawl
Exterior Walls
2x6
Width
61' 0"
Depth
53' 0"
Max Ridge Height
29' 4"
Type
Attached
Area
1000 sq. ft.
Count
3 Cars
Entry Location
Front
First Floor
10'
Second Floor
9'
Primary Pitch
5 on 12
Secondary Pitch
8 on 12
Framing Type
Truss