

Total Heated Area
1,015 sq. ft.
1st Floor
672 sq. ft.
2nd Floor
343 sq. ft.
Bedrooms
2
Full bathrooms
2
Standard Foundations
Basement, Walkout
Exterior Walls
2x6
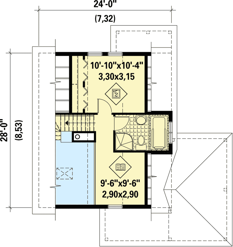
Width
24' 0"
Depth
28' 0"
Max Ridge Height
36' 2"
First Floor
9'
Second Floor
8'
Primary Pitch
12 on 12
Secondary Pitch
12 on 12
Framing Type
Truss
Total Heated Area
1,015 sq. ft.
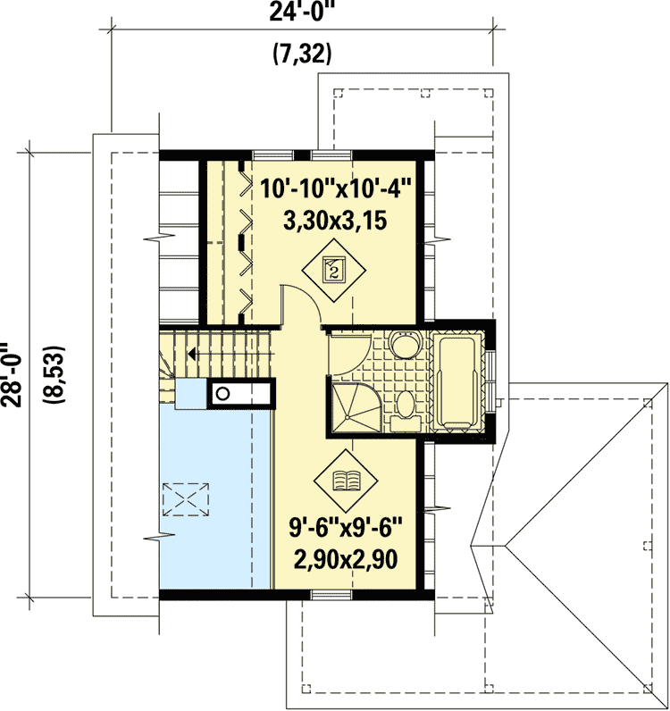
1st Floor
672 sq. ft.
2nd Floor
343 sq. ft.
Bedrooms
2
Full bathrooms
2
Standard Foundations
Basement, Walkout
Exterior Walls
2x6
Width
24' 0"
Depth
28' 0"
Max Ridge Height
36' 2"
First Floor
9'
Second Floor
8'
Primary Pitch
12 on 12
Secondary Pitch
12 on 12
Framing Type
Truss