

Total Heated Area
1,514 sq. ft.
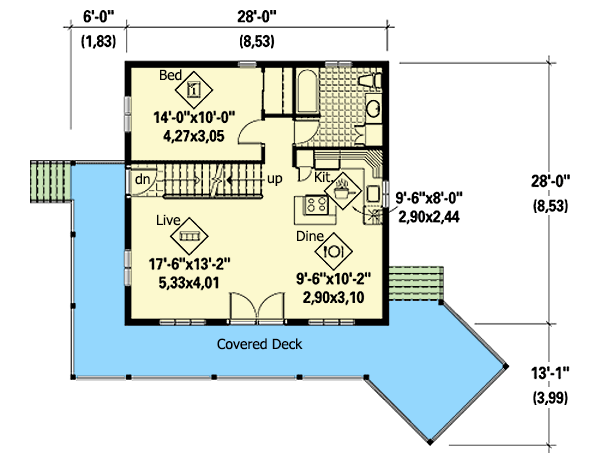
1st Floor
784 sq. ft.
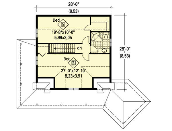
2nd Floor
730 sq. ft.
Bedrooms
3
Full bathrooms
2
Standard Foundations
Walkout
Exterior Walls
2x6
Width
28' 0"
Depth
28' 0"
Max Ridge Height
29' 6"
First Floor
8'
Primary Pitch
12 on 12
Secondary Pitch
8 on 12
Framing Type
Truss
Total Heated Area
1,514 sq. ft.
1st Floor
784 sq. ft.
2nd Floor
730 sq. ft.
Bedrooms
3
Full bathrooms
2
Standard Foundations
Walkout
Exterior Walls
2x6
Width
28' 0"
Depth
28' 0"
Max Ridge Height
29' 6"
First Floor
8'
Primary Pitch
12 on 12
Secondary Pitch
8 on 12
Framing Type
Truss