LogoLogo TaglineLogo Tagline
Loading...
Plan 25032DH

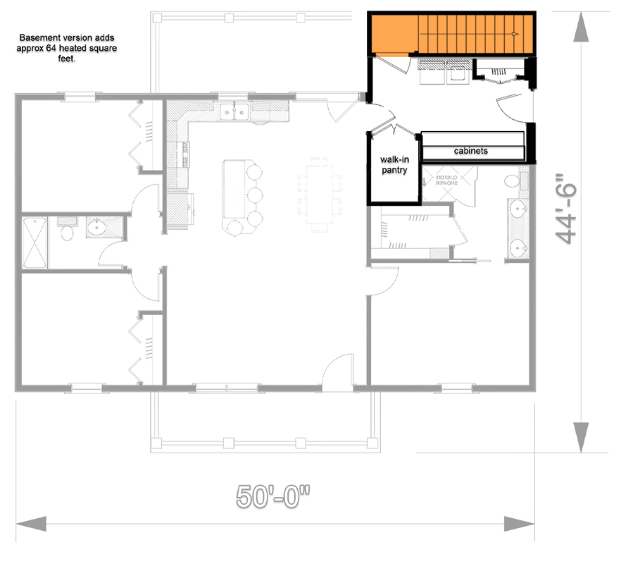
1425 Square Foot Country Home Plan 3 Beds in a Split Layout

Heated S.F.
1,425
Beds
3
Baths
2
Stories
1

Floor Plan

Plan 25032DH

Main Level
Main Level
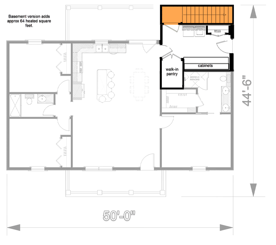
Basement Stairs Location
Basement Stairs Location

Plan 25032DH

M-F 9am-5pm EST |

1-203-761-8500

Main Level

Plan 25032DH: 1425 Square Foot Country Home Plan 3 Beds in a Split Layout - Floor Plan - Main Level - Cottage, Country, Rustic, Traditional, Vacation

Basement Stairs Location

Plan 25032DH: 1425 Square Foot Country Home Plan 3 Beds in a Split Layout - Floor Plan - Basement Stairs Location - Cottage, Country, Rustic, Traditional, Vacation

Plan Details

  • This beautiful 1,425 square foot country home plan with board and batten home and an 8-foot deep covered front porch has classic curb appeal. 
  • Enter the home and discover the great room and kitchen-and-dining area sharing an open layout ideal for entertaining and family time. The L-shaped kitchen features lots of cabinets for storage and an island with a snack bar. The laundry room is close to the kitchen for easy pantry access. 
  • On the left side of the house, two bedrooms share a hall bathroom. Across the home, the master bedroom has a large walk-in closet and the bathroom has a large custom shower and dual sinks. The laundry room can be accessed directly from the bath (the door is optional), and there is an extra closet for more storage. 
  • A door by the kitchen takes you to a rear deck giving you a fresh air space to enjoy.
  • Related Plans: Get alternate versions with house plans 25021DH (1,425 sq. ft.)  and 25008DH (1,311 sq. ft.).

What's Included

  • Floor plans - Included with your plans will be a detailed floor plan at 1/4" scale with a window and door schedule.
  • Foundation Plan - On many of our plans we offer you options on the type of foundation. The available options for each plan are shown on the page with the plans.
  • Electrical Plan - This sheet will show the locations of all lights, receptacles, switches, etc. as well as a roof layout.
  • Exterior Elevations - Our plans include complete front, sides and rear views, as well as any special exterior details.
  • Interior Elevations of cabinets, cabinet details, columns and walls with unique conditions.
  • Building Sections, Details and Typical Specifications Sheets
  • Some plans can be ordered with a materials list for an extra change. Please check availability for this option.
  • Plumbing diagrams and HVAC plans are not available for these homes, since they are generally not needed for home construction and since each county's code will vary and a licensed plumber and/or electrician must follow the codes. 

What's Not Included

  • Architectural or Engineering Stamp - handled locally if required 
  • Site Plan - handled locally when required 
  • Mechanical Drawings (location of heating and air equipment and duct work) - your subcontractors handle this 
  • Plumbing Drawings (drawings showing the actual plumbing pipe sizes and locations) - your subcontractors handle this 
  • Energy calculations - handled locally when required

Starting at

Loading...
Price Match Guarantee
What's included?

FORMAT & LICENSE

Choose an option

$0

Not sure what to choose?

Pointer link icon

FOUNDATION

Choose an option

+$0

OPTIONS

Choose Additional Options

+$0

Loading...

Modify this Plan

Receive a free modification quote within 3 business days.

Loading...

Start with a Cost Report

Calculate the cost to build & furnish your home.

Loading...
Loading...

Square Footage Breakdown

Total Heated Area

1,425 sq. ft.

1st Floor

1,425 sq. ft.

Porch, Front

400 sq. ft.

Deck

160 sq. ft.

Beds/Baths

Bedrooms

3

Full bathrooms

2

Foundation Type

Standard Foundations

Stem Wall

Exterior Walls

Exterior Walls

2x6

Dimensions

Width

50' 0"

Depth

44' 6"

Max Ridge Height

20' 6"

Ceiling Heights

First Floor

9'

Roof Details

Primary Pitch

8 on 12

Secondary Pitch

4 on 12

Architectural Style

Cottage

Square Footage Breakdown

Total Heated Area

1,425 sq. ft.

1st Floor

1,425 sq. ft.

Porch, Front

400 sq. ft.

Deck

160 sq. ft.

Beds/Baths

Bedrooms

3

Full bathrooms

2

Foundation Type

Standard Foundations

Stem Wall

Exterior Walls

Exterior Walls

2x6

Dimensions

Width

50' 0"

Depth

44' 6"

Max Ridge Height

20' 6"

Ceiling Heights

First Floor

9'

Roof Details

Primary Pitch

8 on 12

Secondary Pitch

4 on 12

* Please note that all sale prices and promotions featured on our website are subject to change without prior notice. While we strive to provide accurate and up-to-date information, occasional discrepancies may occur due to factors beyond our control. We encourage you to verify all details, including pricing and availability, before making any purchase. Exclusions or restrictions may apply to specific promotions. We reserve the right to modify or cancel any sale at our discretion. Thank you for your understanding and happy shopping!Let's go back to the top.