

Total Heated Area
1,690 sq. ft.
1st Floor
1,220 sq. ft.
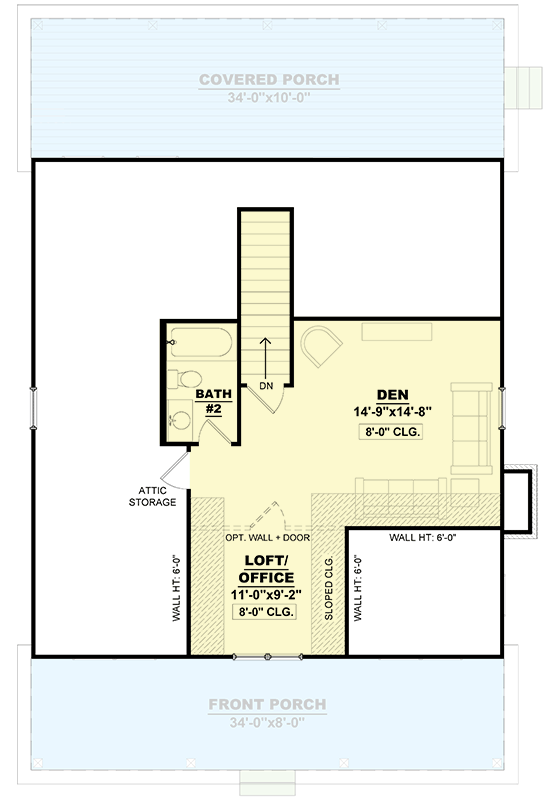
2nd Floor
470 sq. ft.
Porch, Front
272 sq. ft.
Porch, Rear
340 sq. ft.
Bedrooms
2
Full bathrooms
2
Standard Foundations
Crawl
Exterior Walls
2x4
Optional Type(s)
2x6
Width
34' 0"
Depth
54' 0"
Max Ridge Height
23' 0"
First Floor
8'
Second Floor
8'
Primary Pitch
10 on 12
Secondary Pitch
4 on 12
Total Heated Area
1,690 sq. ft.
1st Floor
1,220 sq. ft.
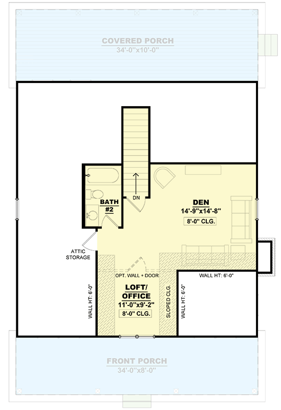
2nd Floor
470 sq. ft.
Porch, Front
272 sq. ft.
Porch, Rear
340 sq. ft.
Bedrooms
2
Full bathrooms
2
Standard Foundations
Crawl
Exterior Walls
2x4
Optional Type(s)
2x6
Width
34' 0"
Depth
54' 0"
Max Ridge Height
23' 0"
First Floor
8'
Second Floor
8'
Primary Pitch
10 on 12
Secondary Pitch
4 on 12