


Total Heated Area
1,770 sq. ft.
1st Floor
1,280 sq. ft.
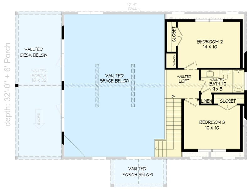
2nd Floor
490 sq. ft.
Basement Unfinished
263 sq. ft.
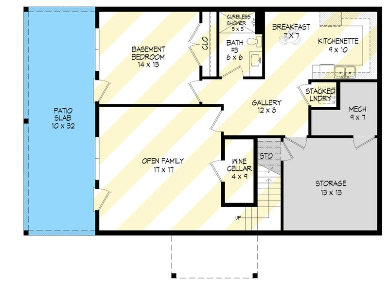
Optional Lower Level
1,017 sq. ft.
Porch, Combined
592 sq. ft.
Bedrooms
3 or 4
Full bathrooms
2 or 3
Half bathrooms
1
Standard Foundations
Walkout
Exterior Walls
2x6
Width
50' 0"
Depth
38' 0"
Max Ridge Height
27' 2"
Lower Level
8'
First Floor
9'
Second Floor
10'
Primary Pitch
12 on 12
Secondary Pitch
5 on 12
Framing Type
Stick
Total Heated Area
1,770 sq. ft.
1st Floor
1,280 sq. ft.
2nd Floor
490 sq. ft.
Basement Unfinished
263 sq. ft.
Optional Lower Level
1,017 sq. ft.
Porch, Combined
592 sq. ft.
Bedrooms
3 or 4
Full bathrooms
2 or 3
Half bathrooms
1
Standard Foundations
Walkout
Exterior Walls
2x6
Width
50' 0"
Depth
38' 0"
Max Ridge Height
27' 2"
Lower Level
8'
First Floor
9'
Second Floor
10'
Primary Pitch
12 on 12
Secondary Pitch
5 on 12
Framing Type
Stick