


Total Heated Area
1,806 sq. ft.
1st Floor
1,806 sq. ft.
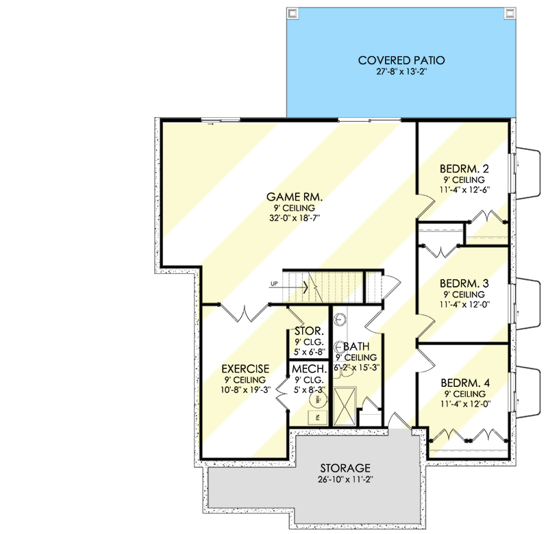
Optional Lower Level
1,576 sq. ft.
Porch, Front
268 sq. ft.
Covered Patio
406 sq. ft.
Workshop
342 sq. ft.
Bedrooms
1, 2, 3, or 4
Full bathrooms
1 or 2
Half bathrooms
1
Standard Foundations
Crawl, Slab
Exterior Walls
2x6
Width
45' 8"
Depth
66' 0"
Type
Attached
Area
924 sq. ft.
Count
2 Cars
Entry Location
Front, Side
Lower Level
9'
First Floor
9'
Total Heated Area
1,806 sq. ft.
1st Floor
1,806 sq. ft.
Optional Lower Level
1,576 sq. ft.
Porch, Front
268 sq. ft.
Covered Patio
406 sq. ft.
Workshop
342 sq. ft.
Bedrooms
1, 2, 3, or 4
Full bathrooms
1 or 2
Half bathrooms
1
Standard Foundations
Crawl, Slab
Exterior Walls
2x6
Width
45' 8"
Depth
66' 0"
Type
Attached
Area
924 sq. ft.
Count
2 Cars
Entry Location
Front, Side
Lower Level
9'
First Floor
9'