

Total Heated Area
1,207 sq. ft.
1st Floor
1,207 sq. ft.
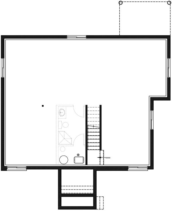
Basement Unfinished
1,200 sq. ft.
Porch, Combined
27 sq. ft.
Bedrooms
2
Full bathrooms
1
Standard Foundations
Basement
Exterior Walls
2x6
Width
40' 0"
Depth
32' 0"
Max Ridge Height
19' 10"
Lower Level
8' 4"
First Floor
9'
Primary Pitch
6 on 12
Total Heated Area
1,207 sq. ft.
1st Floor
1,207 sq. ft.
Basement Unfinished
1,200 sq. ft.
Porch, Combined
27 sq. ft.
Bedrooms
2
Full bathrooms
1
Standard Foundations
Basement
Exterior Walls
2x6
Width
40' 0"
Depth
32' 0"
Max Ridge Height
19' 10"
Lower Level
8' 4"
First Floor
9'
Primary Pitch
6 on 12