LogoLogo TaglineLogo Tagline
Loading...
Plan 61589UT

2-Bed Contemporary House Plan with Oversized RV Garage - 1595 Sq Ft

Heated S.F.
1,595
Beds
1 - 2
Baths
1.5+
Stories
2
Cars
3

Floor Plan

Plan 61589UT

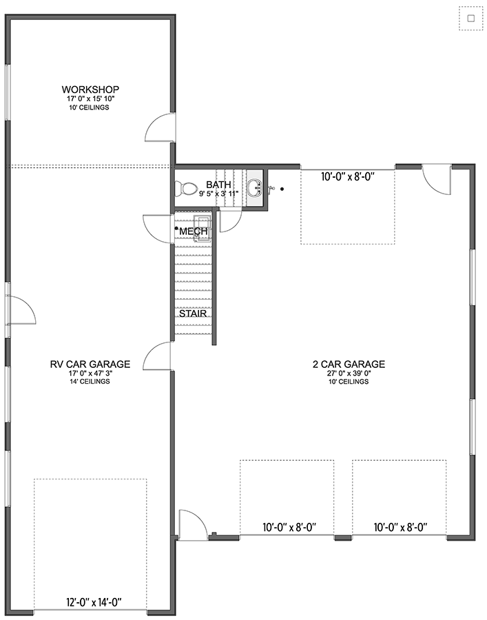
Main Level
Main Level
2nd Floor
2nd Floor

Plan 61589UT

M-F 9am-5pm EST |

1-203-761-8500

Main Level

Plan 61589UT: 2-Bed Contemporary House Plan with Oversized RV Garage - 1595 Sq Ft - Floor Plan - Main Level - Contemporary, Traditional

2nd Floor

Plan 61589UT: 2-Bed Contemporary House Plan with Oversized RV Garage - 1595 Sq Ft - Floor Plan - 2nd Floor - Contemporary, Traditional

Plan Details

  • This contemporary house plan offers you 1,595 square feet of heated living space with 2 beds, 1 full bath, and a 2,432 square foot 2-car & RV garage.
  • Architectural Designs' primary focus is to make the process of finding and buying house plans more convenient for those interested in constructing new homes - single family and multi-family ones - as well as garages, pool houses and even sheds and backyard offices.
  • Our website offers a vast collection of home designs, encompassing various architectural styles, sizes, and features, which can be customized to meet specific needs and preferences
  • We curate and add to our design portfolio every day as we work with hundreds of residential building designers and architects to bring you the most diverse and best house plans available.
  • We can modify any house plan you see on our site. Learn more about modifications.

What's Included

  • General notes
  • Foundation plan
  • Detailed floor plans
  • Floor framing
  • Roof framing
  • Elevations
  • Cross sections
  • Electrical plans
  • General details
View Sample Plan

What's Not Included

  • Architectural or Engineering Stamp - handled locally if required
  • Site Plan - handled locally when required
  • Mechanical Drawings (location of heating and air equipment and duct work) - your subcontractors handle this
  • Plumbing Drawings (drawings showing the actual plumbing pipe sizes and locations) - your subcontractors handle this
  • Energy calculations - handled locally when required

Starting at

Loading...
Price Match Guarantee
What's included?

FORMAT & LICENSE

Choose an option

$0

Not sure what to choose?

Pointer link icon

FOUNDATION

Choose an option

+$0

OPTIONS

Choose Additional Options

+$0

Loading...

Modify this Plan

Receive a free modification quote within 3 business days.

Loading...

Start with a Cost Report

Calculate the cost to build & furnish your home.

Loading...
Loading...

Square Footage Breakdown

Total Heated Area

1,595 sq. ft.

2nd Floor

1,595 sq. ft.

Beds/Baths

Bedrooms

1 or 2

Full bathrooms

1

Half bathrooms

2

Foundation Type

Standard Foundations

Stem Wall

Exterior Walls

Exterior Walls

2x6

Dimensions

Width

50' 0"

Depth

64' 0"

Max Ridge Height

29' 0"

Garage

Type

Attached, RV Garage

Area

2432 sq. ft.

Count

3 Cars

Entry Location

Front

Ceiling Heights

First Floor

10'

Roof Details

Primary Pitch

4 on 12

Framing Type

Stick

Architectural Style

Contemporary

Square Footage Breakdown

Total Heated Area

1,595 sq. ft.

2nd Floor

1,595 sq. ft.

Beds/Baths

Bedrooms

1 or 2

Full bathrooms

1

Half bathrooms

2

Foundation Type

Standard Foundations

Stem Wall

Exterior Walls

Exterior Walls

2x6

Dimensions

Width

50' 0"

Depth

64' 0"

Max Ridge Height

29' 0"

Garage

Type

Attached, RV Garage

Area

2432 sq. ft.

Count

3 Cars

Entry Location

Front

Ceiling Heights

First Floor

10'

Roof Details

Primary Pitch

4 on 12

Framing Type

Stick

Architectural Style

* Please note that all sale prices and promotions featured on our website are subject to change without prior notice. While we strive to provide accurate and up-to-date information, occasional discrepancies may occur due to factors beyond our control. We encourage you to verify all details, including pricing and availability, before making any purchase. Exclusions or restrictions may apply to specific promotions. We reserve the right to modify or cancel any sale at our discretion. Thank you for your understanding and happy shopping!Let's go back to the top.