

Total Heated Area
1,041 sq. ft.
2nd Floor
1,041 sq. ft.
Bedrooms
2
Full bathrooms
1
Standard Foundations
Slab
Exterior Walls
2x6
Width
40' 6"
Depth
32' 0"
Max Ridge Height
26' 11"
Type
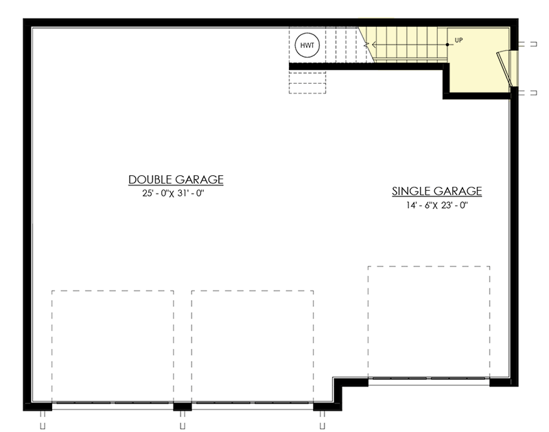
Detached
Area
1267 sq. ft.
Count
3 Cars
Entry Location
Front
First Floor
10'
Second Floor
9'
Primary Pitch
10 on 12
Framing Type
Truss
Total Heated Area
1,041 sq. ft.
2nd Floor
1,041 sq. ft.
Bedrooms
2
Full bathrooms
1
Standard Foundations
Slab
Exterior Walls
2x6
Width
40' 6"
Depth
32' 0"
Max Ridge Height
26' 11"
Type
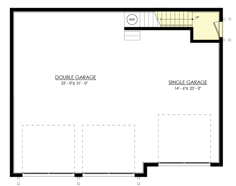
Detached
Area
1267 sq. ft.
Count
3 Cars
Entry Location
Front
First Floor
10'
Second Floor
9'
Primary Pitch
10 on 12
Framing Type
Truss