

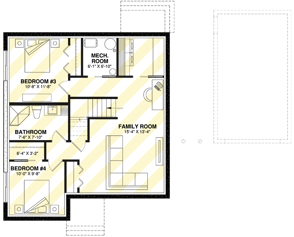
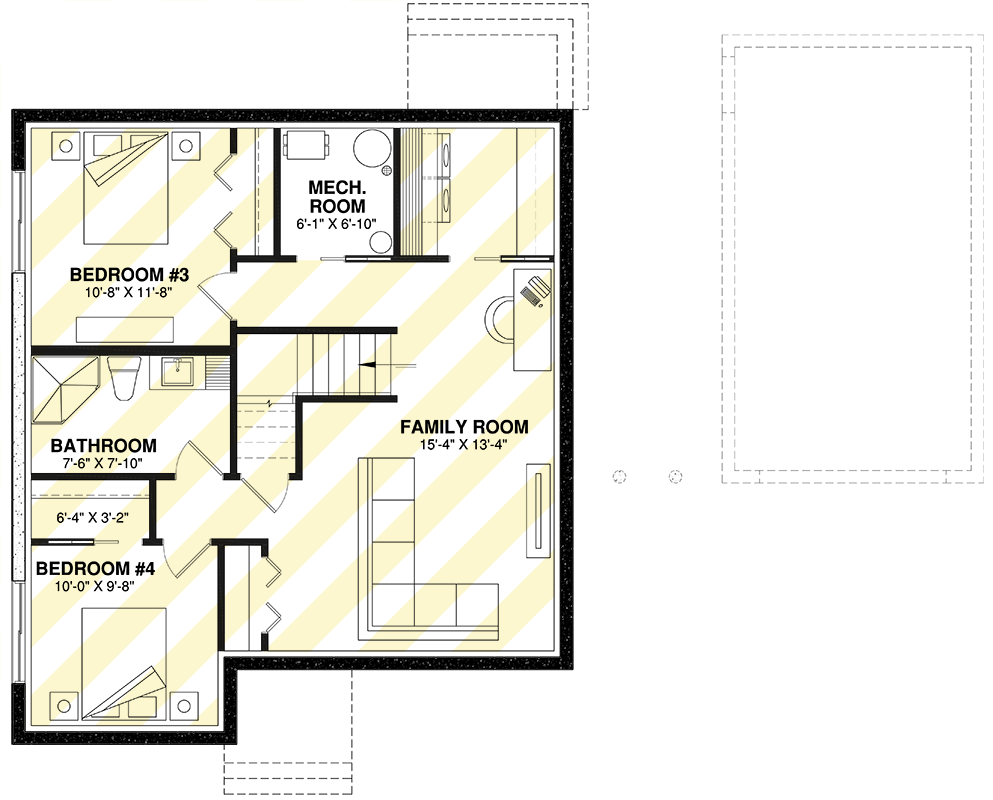
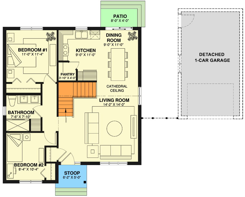
Total Heated Area
948 sq. ft.
1st Floor
948 sq. ft.
Bedrooms
2
Full bathrooms
1
Standard Foundations
Basement
Exterior Walls
2x6
Width
30' 0"
Depth
34' 0"
Max Ridge Height
18' 8"
Type
Detached
Area
287 sq. ft.
Count
1 Cars
Entry Location
Front
First Floor
8'
Framing Type
Truss
Total Heated Area
948 sq. ft.
1st Floor
948 sq. ft.
Bedrooms
2
Full bathrooms
1
Standard Foundations
Basement
Exterior Walls
2x6
Width
30' 0"
Depth
34' 0"
Max Ridge Height
18' 8"
Type
Detached
Area
287 sq. ft.
Count
1 Cars
Entry Location
Front
First Floor
8'
Framing Type
Truss